Good Plan 78
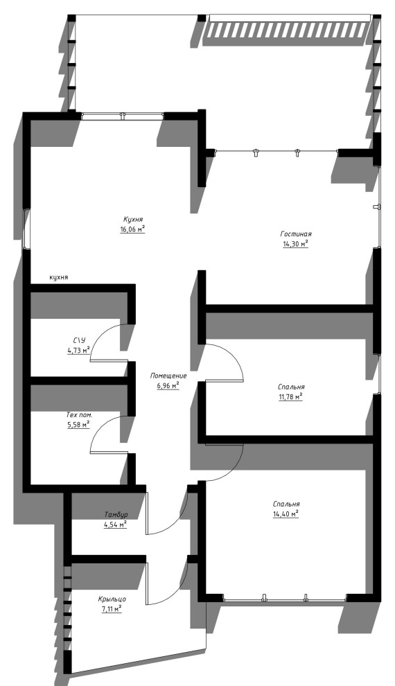
Одноэтажный каркасный жилой дом общей площадью 78 м2. Небольшой загородный дом в современном стиле для отдыха за городом
Год реализации: 2020
Стоимость проектирования: 135 000 ₽
11 фотографий
Одноэтажный каркасный жилой дом общей площадью 78 м2. Небольшой загородный дом в современном стиле для отдыха за городом
11 фотографий
