Гольф клуб Пестово
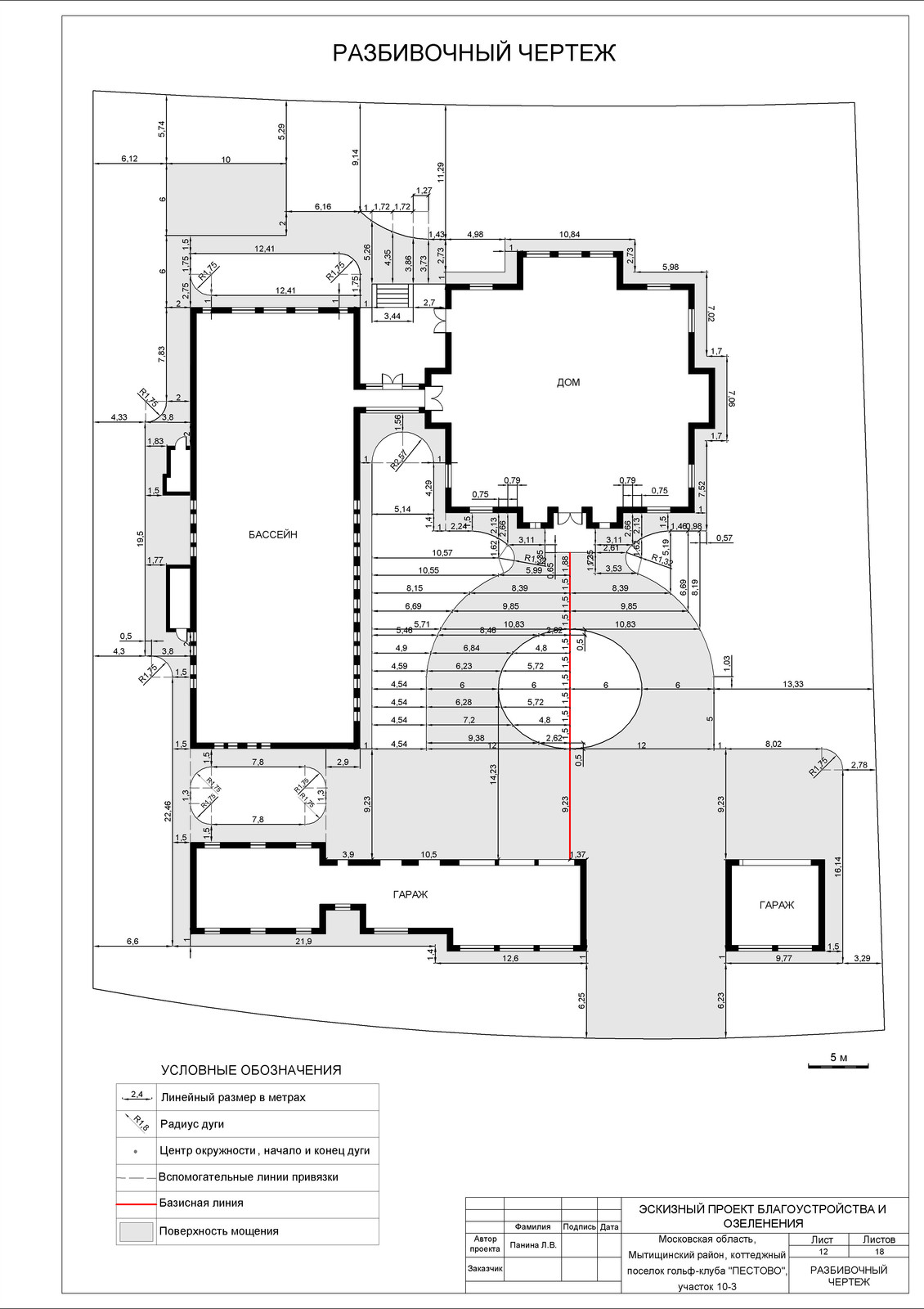
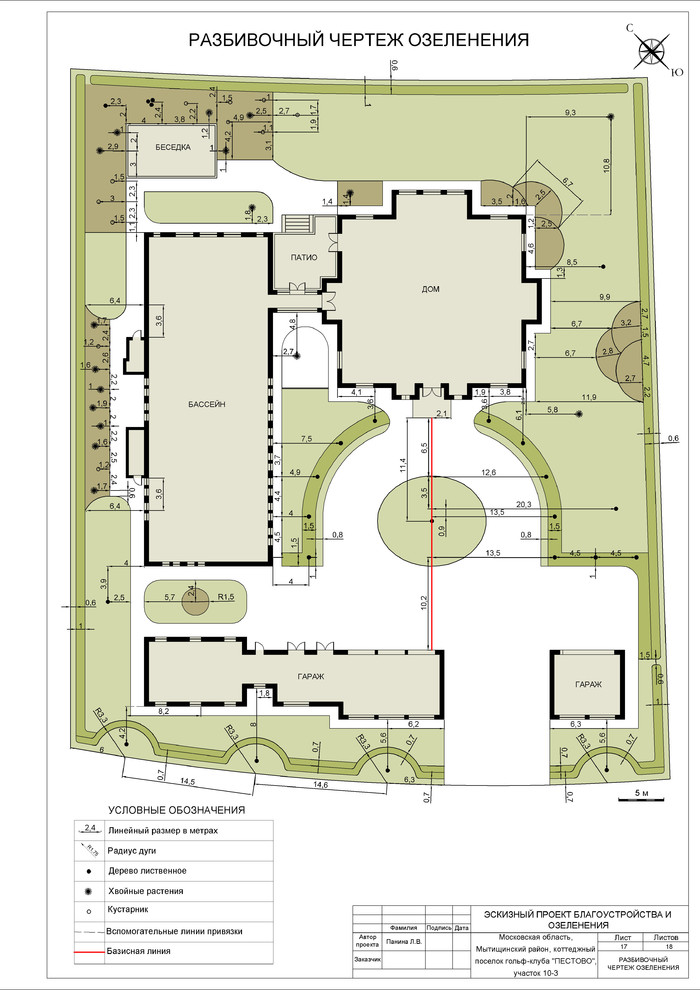
Участок с выходом на Гольф поле Пестово. Ландшафтный дизайн участка выполнен в классическом стиле с использованием стриженых живых изгородей и деревьев с сформированной кроной. Основная часть мощения выполнена из гранитной брусчатки. В приватной части сада для устройства покрытий используется террасная термообработанная доска и "йоркский камень".
Год реализации: 2013
Стоимость проектирования: 275 000 ₽
10 фотографий











