logo

Гарсоньерка в комлпексе "Ясный берег"

Год реализации: 2016
Стоимость проектирования: 135 000
photo

5 фотографий

Мягкая группа
Мягкая группа
Обеденная группа
Обеденная группа
Спальня
Спальня
Кухня гостиная
Кухня гостиная
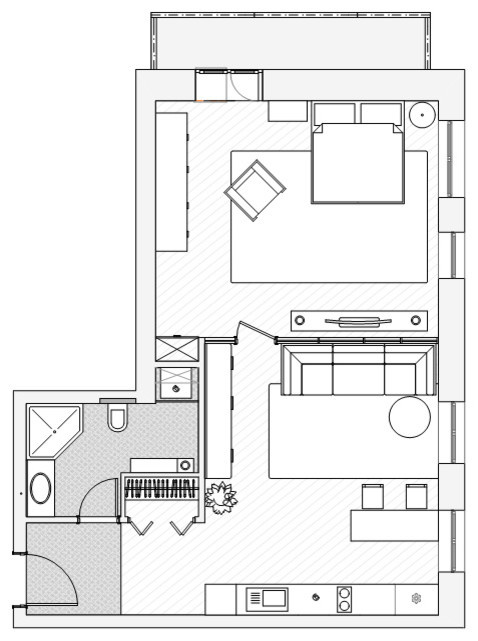
План помещения
План помещения
Фоновое изображение профиля Polina Goldobina
Фото профиля Polina Goldobina

Polina Goldobina

Дизайнеры интерьера