Галерея гаражного дизайна «Тіні та відтінки»
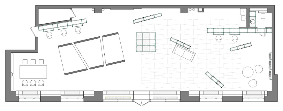
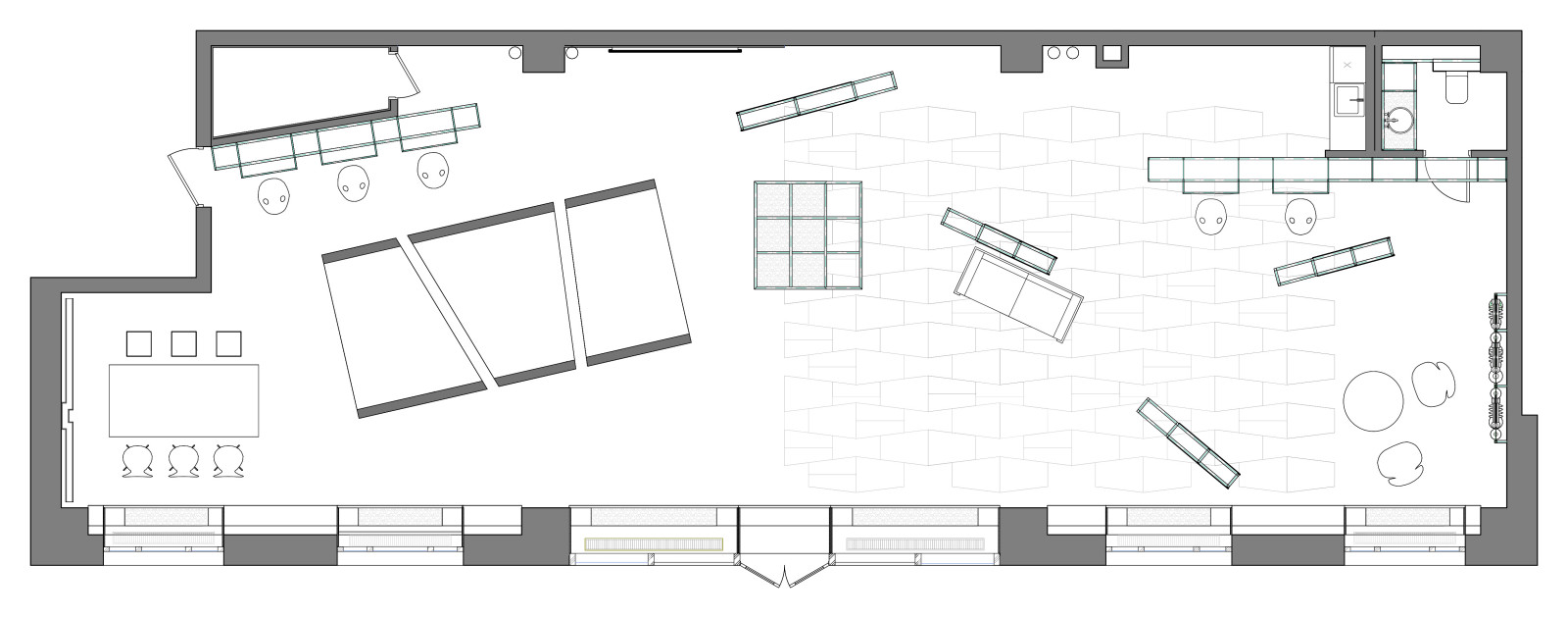
Известный украинский архитектор Наталия Олексиенко руководитель архитектурной . мастерской «Эволюционная Архитектура» создала уникальный атмосферное пространство . Галереи гаражного дизайна «Тіні та відтінки» - настоящий вызов восприятию. . Вы попадаете в хорошо продуманную и в тоже самое время неожиданную игру света и тени . с формой и пространством. Эта игра никогда не бывает одинаковой и простой: солнечно, . пасмурно, вечер – меняется характер внешнего источника света – тут же пространство сообщает . новые образы и ощущения. Здесь нет ничего случайного, динамично всё. Если это подвижный . элемент интерьера, мы перемещаем его и создаем новые грани для переживаний. Если это стена, . пол, потолок, достаточно изменить световой сценарий, как пространство послушно . трансформируется по его законам. . Источникам направленного света можно придать любое положение, тем самым . акцентуировать любую поверхность или предмет. А подчеркивать здесь есть что: коллекция стрит- . арт в различных стилях, пол с авторским узором, патинированная медь, винтаж-металл, панно из . электроизоляторов, авторская мебель, сетка, голый бетон, кирпич и многое другое. Все . предметные элементы разработаны по авторским эскизам Наталии Олексиенко и созданы . вручную, таким образом, проявляя живой след рук мастеров-творцов. . Демо-зона точечного и линейного света сформирована 3-ями блоками специально . разработанного Дисплей-тоннеля, подвижные конструкции которого каждая в отдельности и в . различной конфигурации вместе создают эффект порталов, через которые «проникают» идеи и . решения для будущих шедевров архитектуры и дизайна. Смарт-система управления светом . позволяет активировать как каждую световую точку в отдельности, так и группировать их в любом . соотношении, а их здесь сотни. В зависимости от сочетания различных предметных решений, . различные световые интерлюдии отдельных пространственных зон каждый раз помогают создать . аутентичный общий сценарий впечатлений, который всегда пластичен и неповторим в своем . многообразии выражения. . С этим интерьером пришло настоящее будущее, название которому - Эволюционная . Архитектура от Олексиенко Наталии.
17 фотографий

















