logo

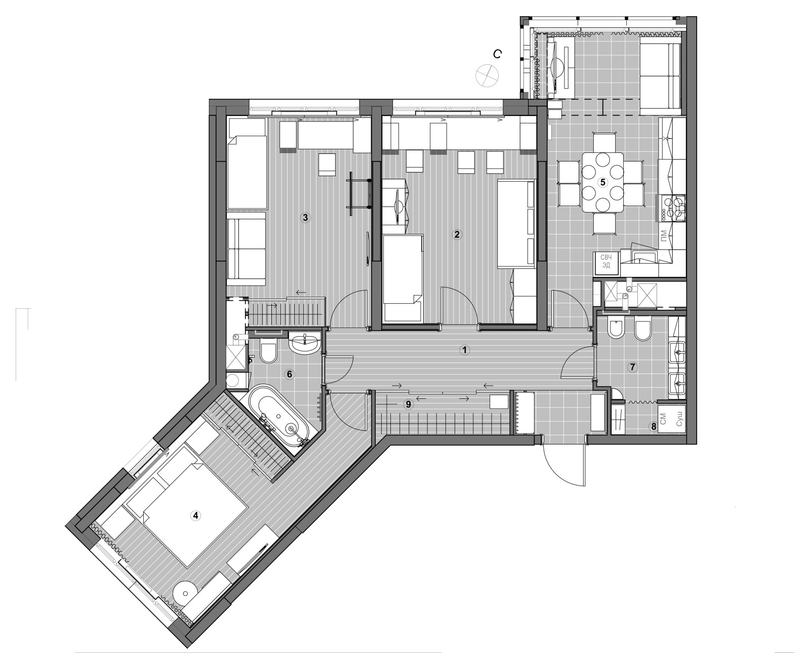
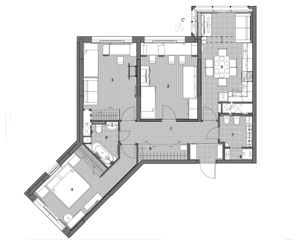
г. Одинцово, ЖК Сколковский

Год реализации: 2019
Стоимость проектирования: 135 000
г. Одинцово, улица Чистяковой
photo

9 фотографий

г. Одинцово, ЖК Сколковский
г. Одинцово, ЖК Сколковский
г. Одинцово, ЖК Сколковский
г. Одинцово, ЖК Сколковский
г. Одинцово, ЖК Сколковский
г. Одинцово, ЖК Сколковский
г. Одинцово, ЖК Сколковский
г. Одинцово, ЖК Сколковский
г. Одинцово, ЖК Сколковский
г. Одинцово, ЖК Сколковский
г. Одинцово, ЖК Сколковский
г. Одинцово, ЖК Сколковский
г. Одинцово, ЖК Сколковский
г. Одинцово, ЖК Сколковский
г. Одинцово, ЖК Сколковский
г. Одинцово, ЖК Сколковский
г. Одинцово, ЖК Сколковский
г. Одинцово, ЖК Сколковский
Фоновое изображение профиля Светлана Краснова
Фото профиля Светлана Краснова

Светлана Краснова

Дизайнеры интерьера

Контакты

г. Москва