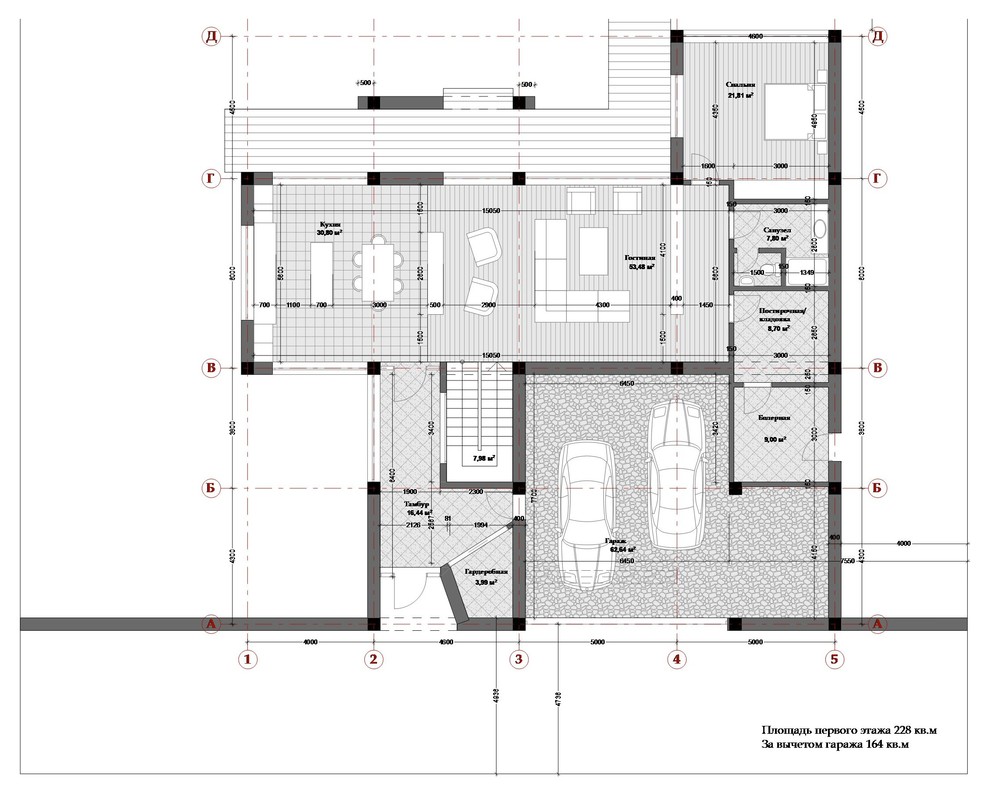
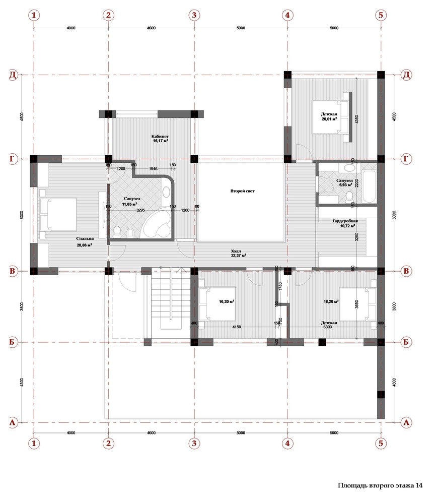
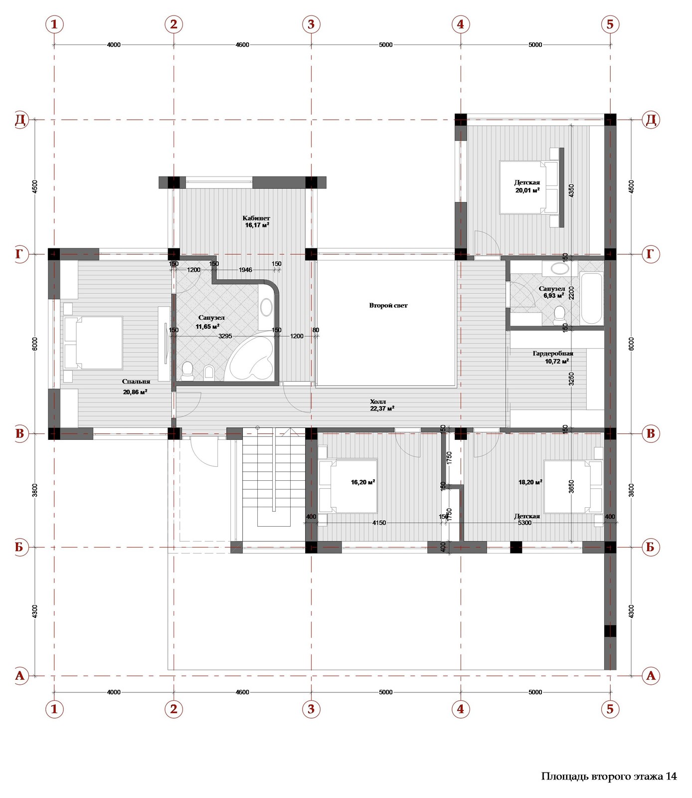
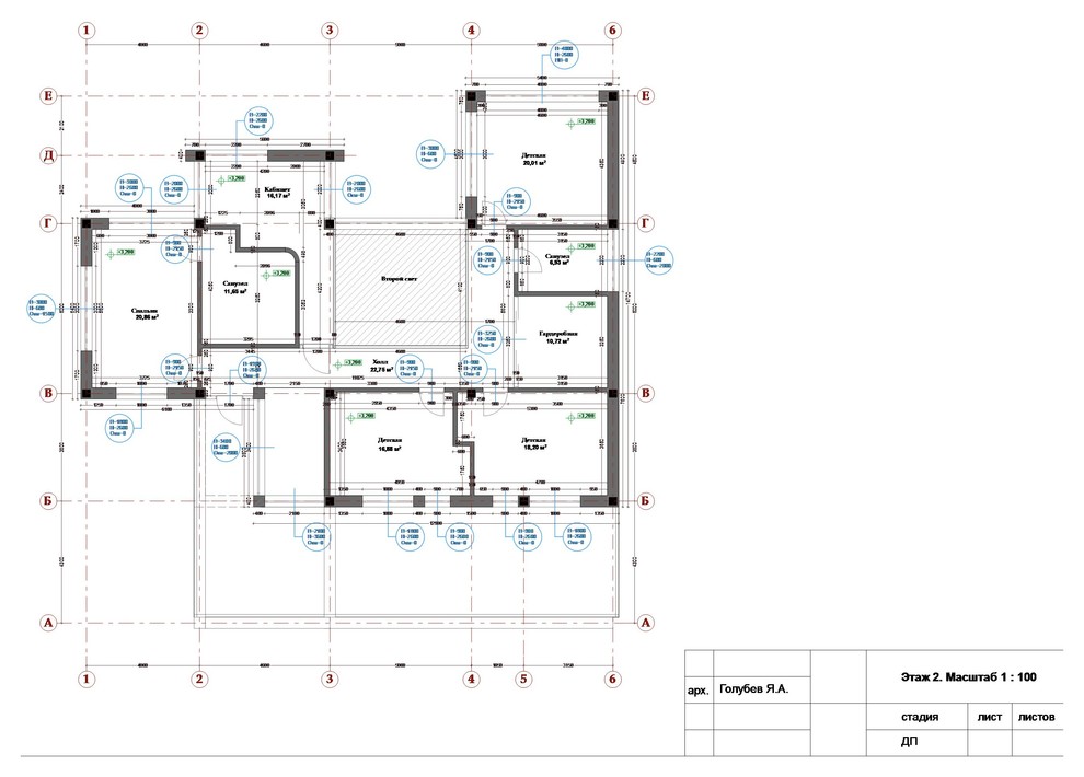
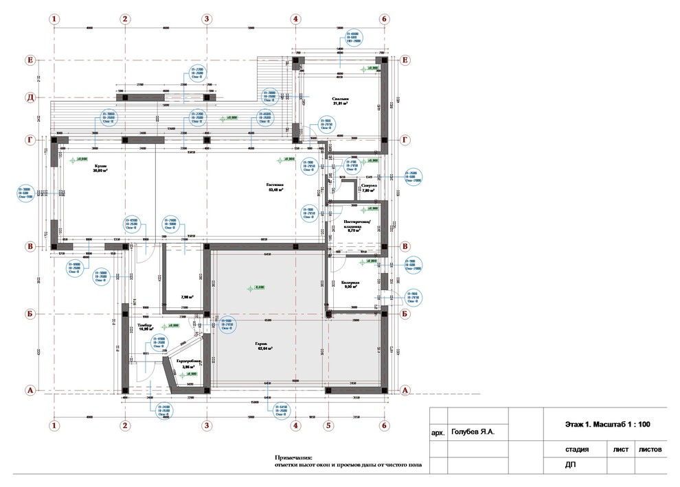
Профиль пользователяЭскизный проект дома в БронницахГод реализации: 2014Стоимость проектирования: 135 000 ₽15 фотографийПоделитьсяСохранитьВ фотопотокеВ фотопотокеЭскизный проект дома в БронницахПоделитьсяСохранитьВ фотопотокеВ фотопотокеЭскизный проект дома в БронницахПоделитьсяСохранитьВ фотопотокеВ фотопотокеФасадПоделитьсяСохранитьРазрез 2ПоделитьсяСохранитьРазрез 1ПоделитьсяСохранитьФасад 3ПоделитьсяСохранитьФасад 2ПоделитьсяСохранитьФасад 1ПоделитьсяСохранитьРазмеры 2-го этажаПоделитьсяСохранитьРазмеры 1-го этажаПоделитьсяСохранитьПлан 2-го этажаПоделитьсяСохранитьПлан 1-го этажаПоделитьсяСохранитьПлита перекрытия 2-го этажаПоделитьсяСохранитьПлита перекрытия 1-го этажаПоделитьсяСохранитьПлита перекрытия фундаментаПоделитьсяСохранить