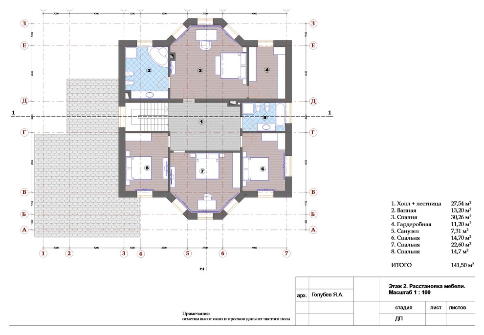
Профиль пользователяЭскизный проект дома в АпрелевкеГод реализации: 201819 фотографийПоделитьсяСохранитьРазрез 2ПоделитьсяСохранитьРазрез 1ПоделитьсяСохранитьПлита перекрытия 1-го этажаПоделитьсяСохранитьПлита перекрытия фундаментаПоделитьсяСохранитьПлан мебели 2-го этажаПоделитьсяСохранитьПлан мебели 1-го этажаПоделитьсяСохранитьПлан кровлиПоделитьсяСохранитьВид 4ПоделитьсяСохранитьВид 3ПоделитьсяСохранитьВид 2ПоделитьсяСохранитьВид 1ПоделитьсяСохранитьПлан 2-го этажаПоделитьсяСохранитьПлан 1-го этажаПоделитьсяСохранитьПлан фундаментаПоделитьсяСохранитьФасад 4ПоделитьсяСохранитьФасад 3ПоделитьсяСохранитьФасад 2ПоделитьсяСохранитьФасад 1ПоделитьсяСохранитьТитульный листПоделитьсяСохранить