Эко дизайн в квартире 70 м2
Яркий дизайн проект для небольшой квартиры в 70 м2
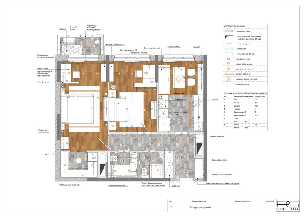
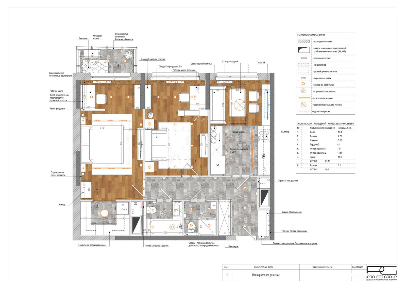
Год реализации: 2022
Стоимость проектирования: 275 000 ₽
г. Москва, 12 улица Большая Филевская, Западный административный округ
25 фотографий
Яркий дизайн проект для небольшой квартиры в 70 м2
25 фотографий
