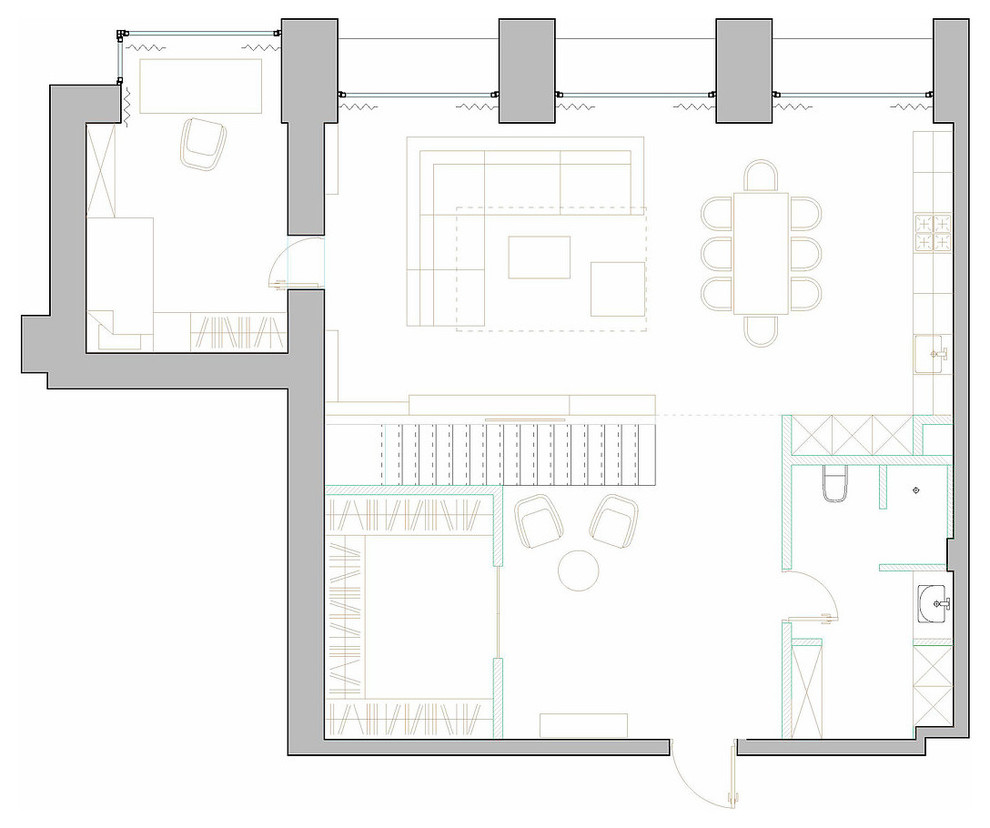
Двухуровневая квартира на Проспекте Мира
Адрес объекта - г. Москва, проспект Мира . . Дата проектирования - 2015 . . Площадь объекта - 137 м2 . . Основная задача: . Разработать интерьеры квартиры для молодой семьи из 2-х человек в сдержанном минималистичном стиле
Год реализации: 2015
11 фотографий












