logo

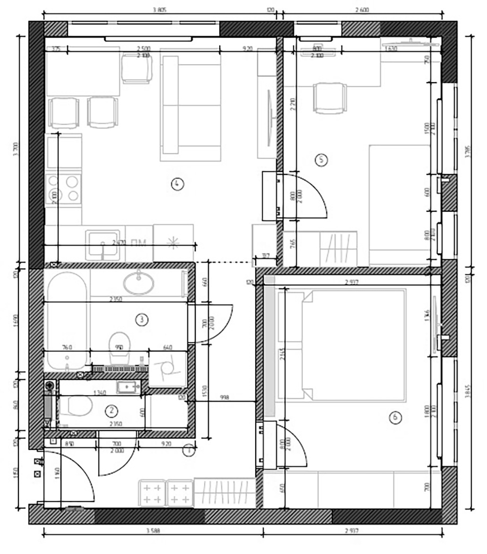
Двухкомнатная квартира 48 м2

Год реализации: 2025
Стоимость проектирования: 150 000
г Москва
photo

9 фотографий

Двухкомнатная квартира 48 м2
Двухкомнатная квартира 48 м2
Двухкомнатная квартира 48 м2
Двухкомнатная квартира 48 м2
Двухкомнатная квартира 48 м2
Двухкомнатная квартира 48 м2
Двухкомнатная квартира 48 м2
Двухкомнатная квартира 48 м2
Двухкомнатная квартира 48 м2
Двухкомнатная квартира 48 м2
Двухкомнатная квартира 48 м2
Двухкомнатная квартира 48 м2
Двухкомнатная квартира 48 м2
Двухкомнатная квартира 48 м2
Двухкомнатная квартира 48 м2
Двухкомнатная квартира 48 м2
Двухкомнатная квартира 48 м2
Двухкомнатная квартира 48 м2
Фоновое изображение профиля София Старостина
Фото профиля София Старостина

София Старостина

Дизайнеры интерьера