Двухэтажный современный дом для молодой семьи
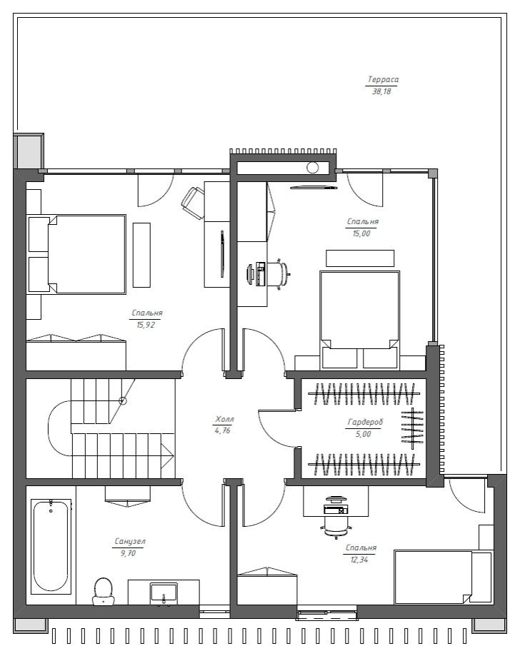
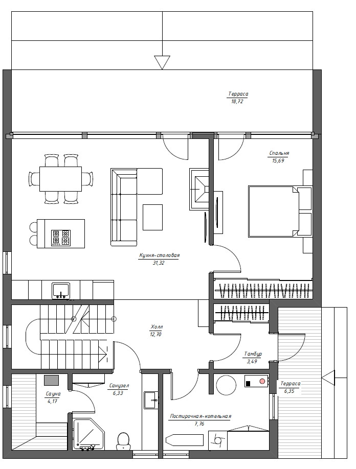
Это дом для молодой семьи, с двумя детьми. На втором этаже располагаются жилые спальни для семьи. Будут приезжать родители погостить, которые будут располагаться в гостевой спальне на 1-м этаже. Мы сделали так, чтобы выход из всех спален на втором этаже, был на большую открытую террасу, чтобы сидя на этой большой террасе можно было наблюдать свой участок. Это дом для постоянного жилья, здесь есть всё для комфортной жизни — сауна, объединенная с душевой, отдельная постирочная комната, где располагаются все хоз-бытовые вещи: пылесос, гладильная, бельё, сушилка, ведра и пр. Своя котельная с необходимым инженерным оборудованием. Гостиную объединили с кухонной зоной — пространство стало единым, объемным. Центром притяжения служит большой камин. Приятный вид из кухни и из гостиной на террасу и свой участок будет несомненно изюминкой этого дома . По конструктиву — фундамент: плита монолитная, толщиной 250мм с дренажом по периметру. Стены каркасные с несущими клееными балками перекрытия, и заполнением минераловатным утеплителем 150+50мм. Плоская кровля с наружным водостоком. Отделка -вертикальный брусок 40х40мм
9 фотографий










