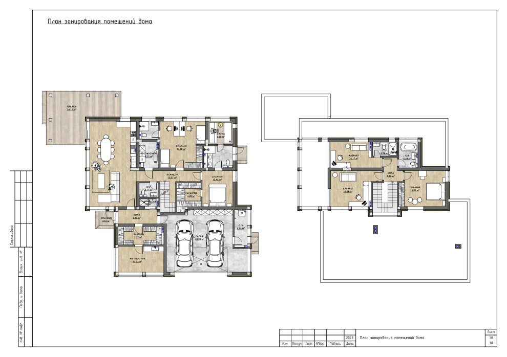
Профиль пользователяДвухэтажный дом с гаражом на 2 автомобиляГод реализации: 20257 фотографийПоделитьсяСохранитьДвухэтажный дом с гаражом на 2 автомобиляПоделитьсяСохранитьДвухэтажный дом с гаражом на 2 автомобиляПоделитьсяСохранитьДвухэтажный дом с гаражом на 2 автомобиляПоделитьсяСохранитьДвухэтажный дом с гаражом на 2 автомобиляПоделитьсяСохранитьДвухэтажный дом с гаражом на 2 автомобиляПоделитьсяСохранитьДвухэтажный дом с гаражом на 2 автомобиляПоделитьсяСохранитьДвухэтажный дом с гаражом на 2 автомобиляПоделитьсяСохранить