logo
ФотоЭкспертыСтатьи
Профиль пользователя

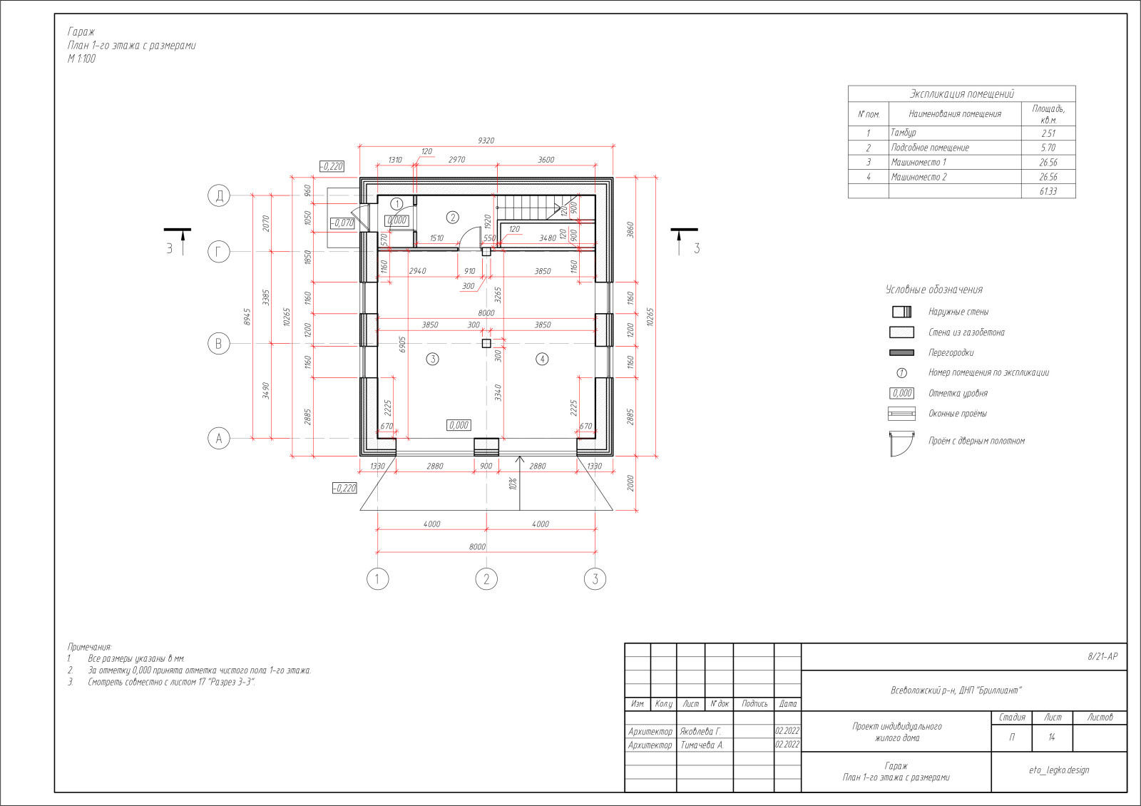
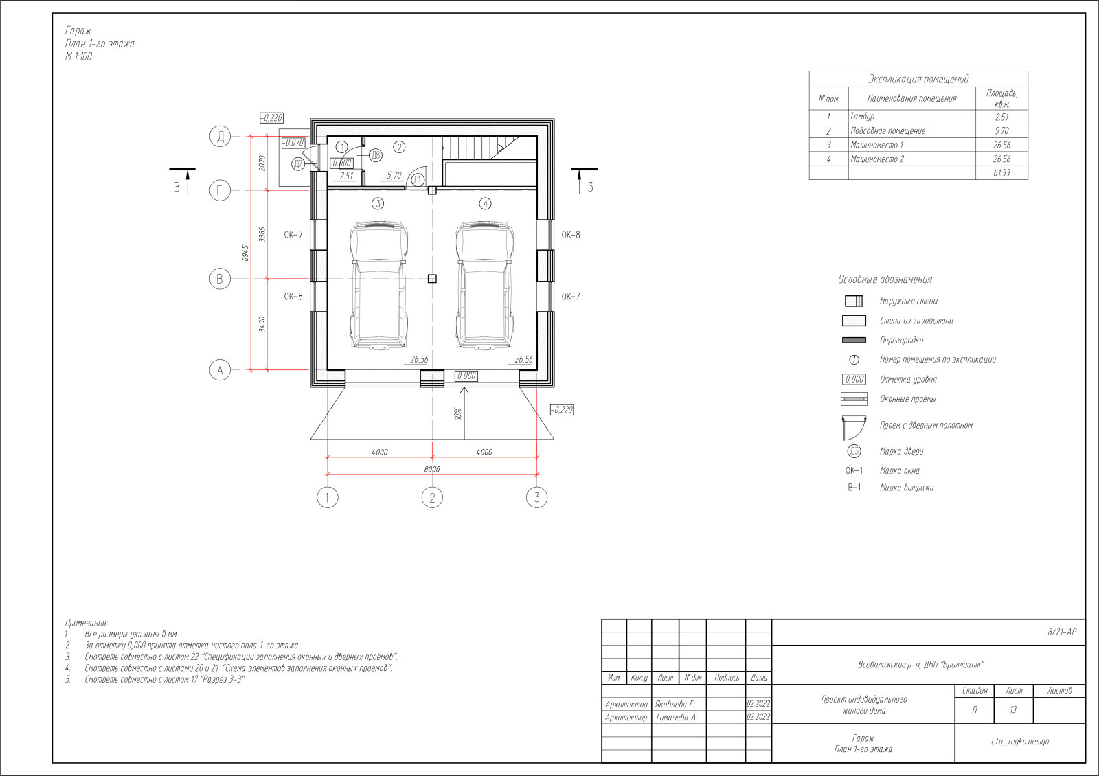
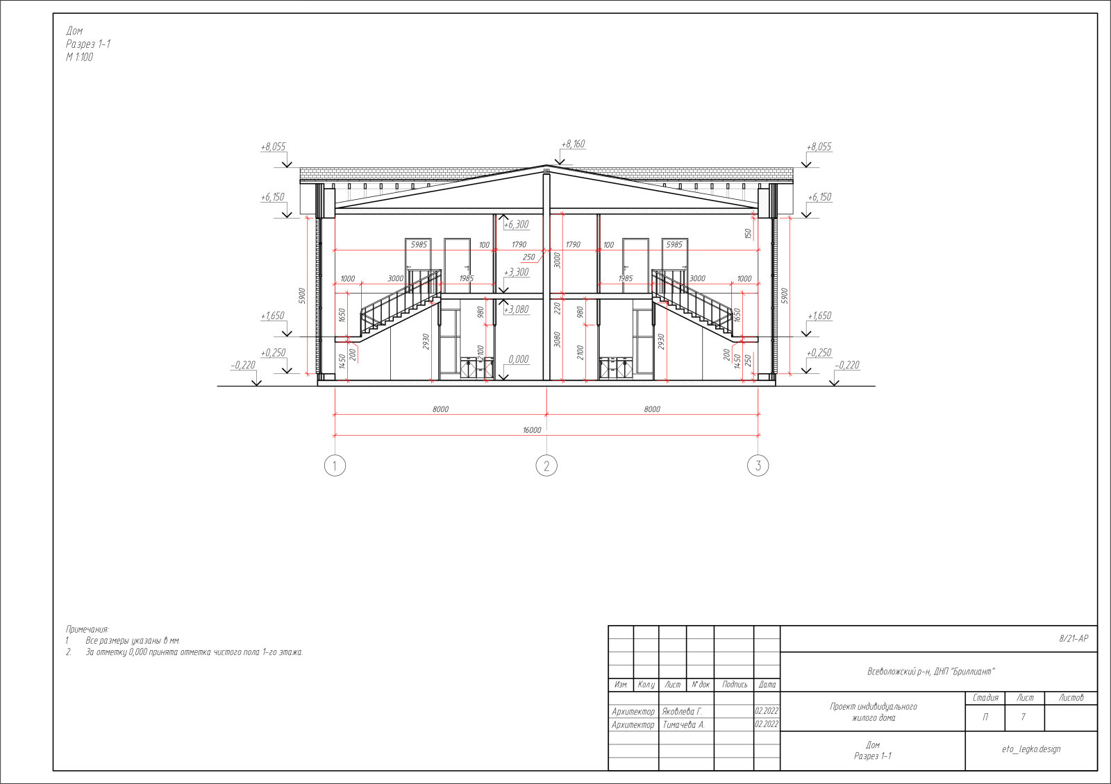
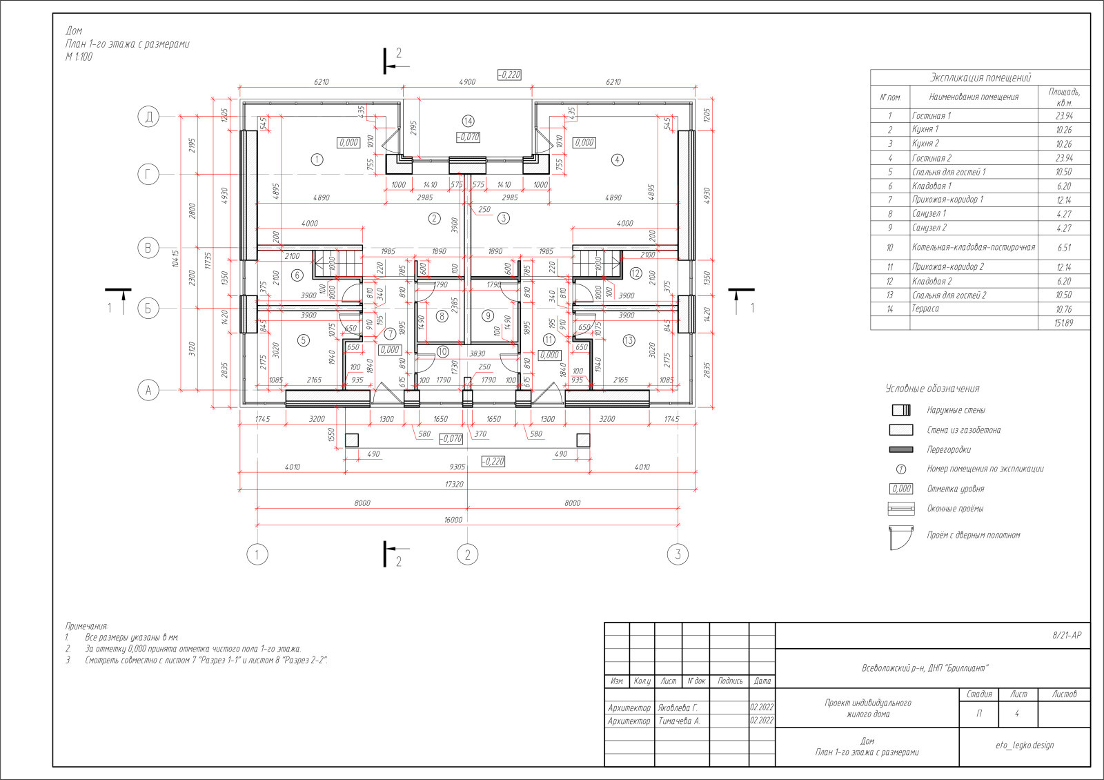
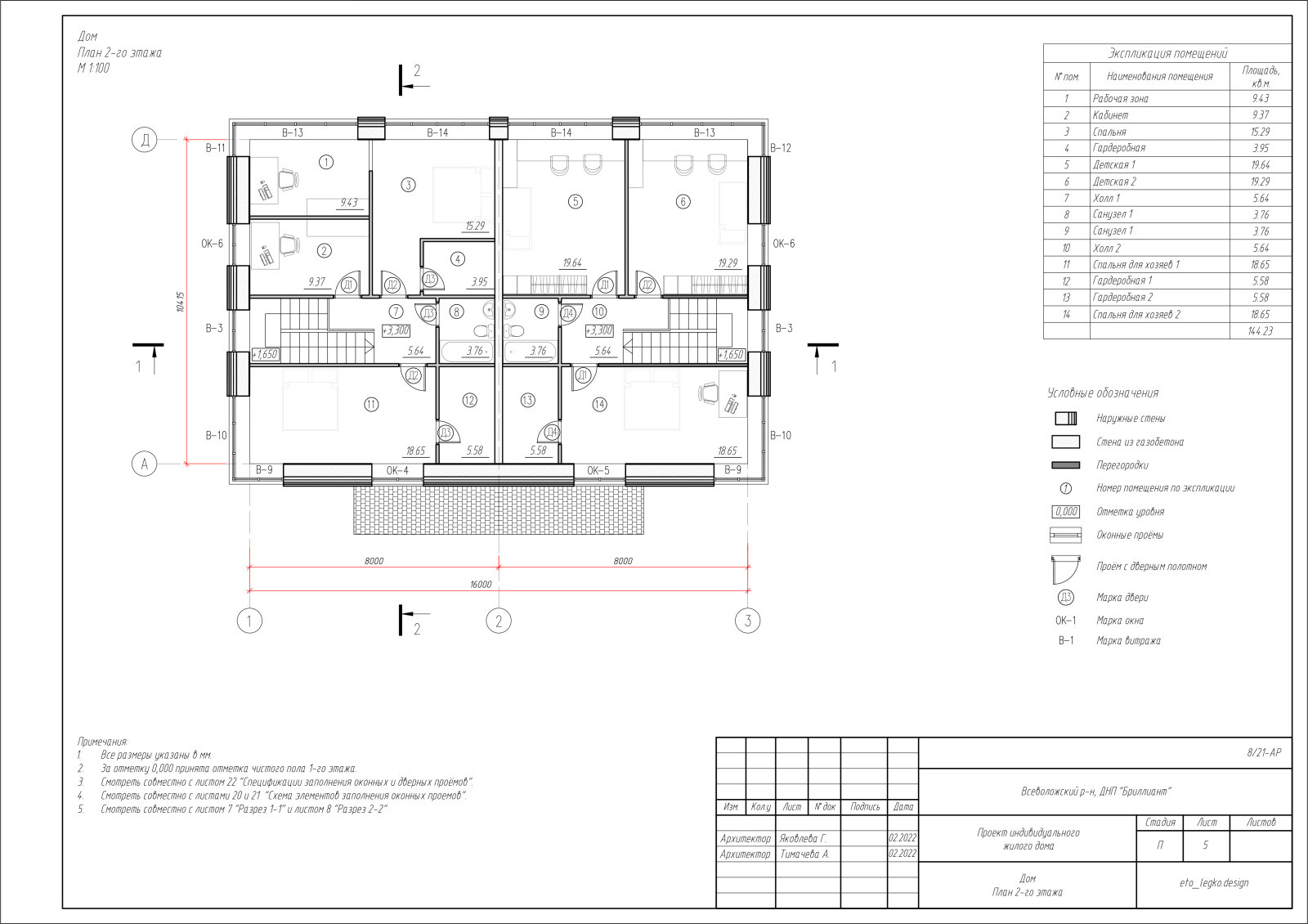
Дуплекс в Ленинградской области

Год реализации: 2022
Стоимость проектирования: 135 000 ₽
photo

2 фотографии

Дуплекс в Ленинградской области
Дуплекс в Ленинградской области
Дуплекс в Ленинградской области
Дуплекс в Ленинградской области
Фоновое изображение профиля Анна и Галина
Фото профиля Анна и Галина

Анна и Галина

0

0 отзывов

Архитекторы

Контакты

г. Санкт-Петербург, 34 проспект Героев
О насМы в прессеFAQКонтакты
ВкДзенTelegramTelegram Pro
Pro
Instagram

Продукт компании Meta, признанной экстремистской организацией, деятельность которой запрещена в РФ

Связаться с поддержкой
Пользовательское соглашениеПолитика в отношении обработки персональных данных