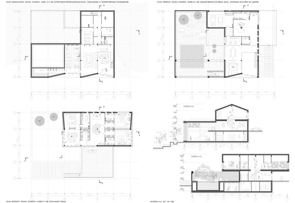
Дом-вилла с двориком "Патио"
Проект является примером современной архитектуры с использованием кирпича в новом прочтении, каждый ракурс раскрывает интересные свойства материала. Благодаря комбинации со стеклом и консольными выступами с одних ракурсов дом выглядит монументально, с других легко и динамично. Авторы Александр Мельниченко, Екатерина Каретина СПб 2016г.
Год реализации: 2016
Стоимость проектирования: 508 750 000 ₽
г. Санкт-Петербург
7 фотографий








