Дом в стиле 19 века Болдино-130
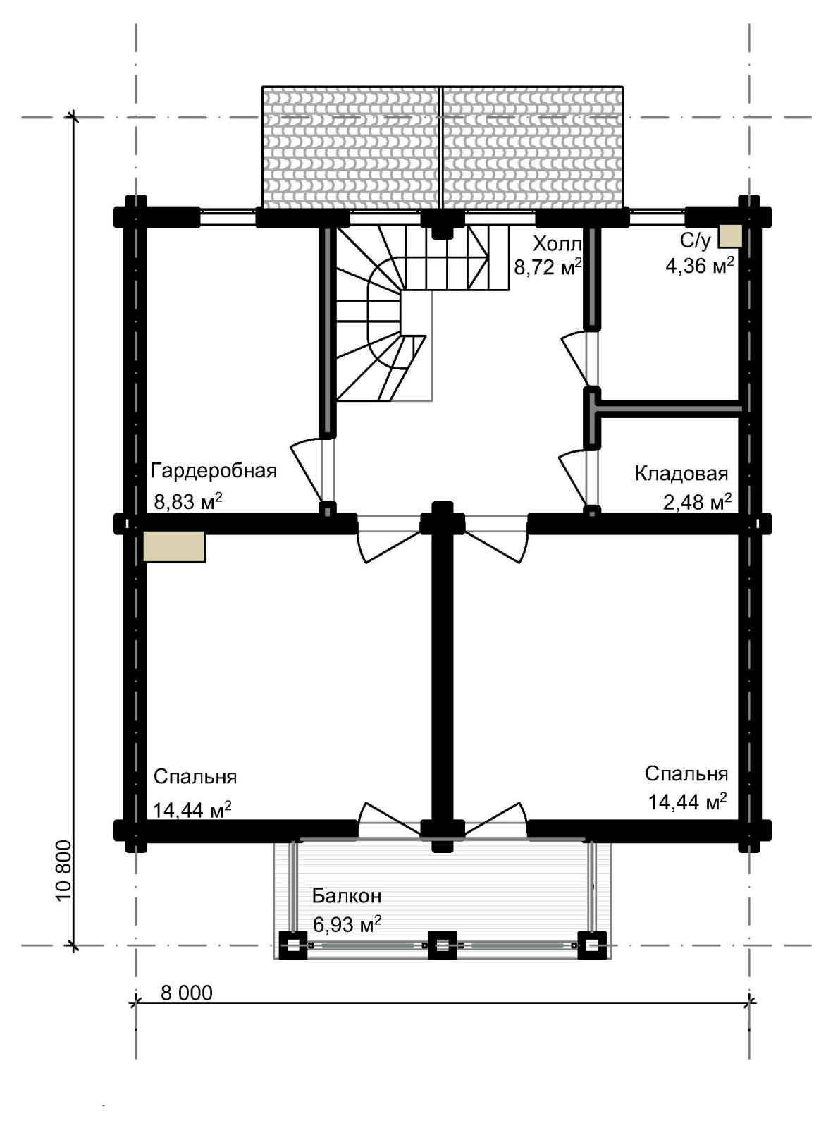
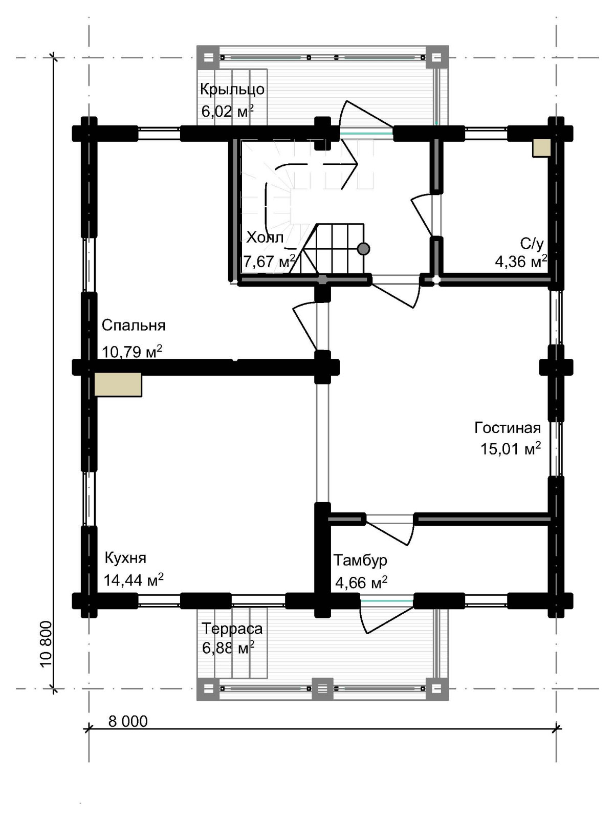
Дом из профилированного бруса в стиле 19 века Болдино-130 . Дом из профилированного бруса Болдино-130 своим внешним видом сильно отличается от облика большинства современных деревянных домов из бруса. Крыльцо с балконом, колонны, цветовые решения – все это элементы, больше присущие архитектуре 19 века. В этом доме из профилированного бруса от компании Могута есть все необходимое для повседневной жизни и постоянного проживания: гостиная, кухня, три спальни, большой гардероб и два санузла. Весь набор комфорта на небольшой площади внутри и стильный дворянский облик снаружи. Проект дома из профилированного бруса Болдино-130 создан фирмой Могута в 2015г. . Похожие проекты домов из профилированного и клееного бруса можно также увидеть на нашем сайте: https://могута.рф/proekty/doma-ploshchadyu-100-150-kv-m . Общая площадь: 130 м2 . Площадь 1 этажа: 69,8 м2 . 1 этаж: . гостиная 15,0 м2 . спальня 10,8 м2 . кухня 14,4 м2 . холл 7,7 м2 . терраса 6,9 м2 . тамбур 4,7 м2 . крыльцо 6,0 м2 . с/у 4,3 м2 . . Площадь 2 этажа: 60,2 м2 . 2 этаж: . спальня 14,4 м2 . спальня 14,4 м2 . гардеробная 8,8 м2 . с/у 4,4 м2 . кладовая 2,5 м2 . холл 8,7 м2 . балкон 6,9 м2 . Цена в клееном брусе толщиной 200 мм – от 6 700 000 руб . Цена в профилированном брусе толщиной 200 мм – от 4 600 000 руб . Цена в оцилиндрованном бревне ф 240 мм - от 4 400 0000 руб . В стоимость входит: . -эскизный проект . - ленточный фундамент на буронабивных сваях . - комплект деталей из клееного или профилированного бруса или бревна с зарезкой чашек под проект со сборкой . - полы и перекрытия с черновым полом . - крыша из металлочерепицы "под ключ"": стропила и обрешетки, паро-гидроизоляция, утепление 200 мм, подшив карнизов . #деревянныедомаМогута – дома из профилированного бруса! . +7 910 790 21 51 . http://могута.рф/proekty/doma-ploshchadyu-100-150-kv-m/boldino . .
7 фотографий








