Дом в Черногориии
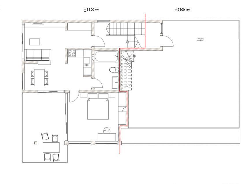
Проект дома в Черногории, дом с перепадом высот в 1,5 метра, . . с изолированными комнатами . . (для возможности сдачи в аренду каждой комнаты)
Год реализации: 2015
6 фотографий
Проект дома в Черногории, дом с перепадом высот в 1,5 метра, . . с изолированными комнатами . . (для возможности сдачи в аренду каждой комнаты)
6 фотографий

Дизайнеры интерьера