Дом-Питон
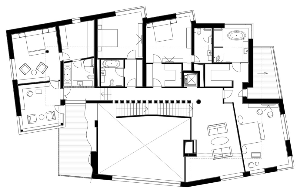
Загородный дом коттеджном поселке «Никольская Слобода» по Новорижскому шоссе. Площадь участка 0.41 га, общая 1 180 кв.м.
Год реализации: 2015
37 фотографий

В фотопотоке

В фотопотоке

В фотопотоке

В фотопотоке

В фотопотоке

В фотопотоке

В фотопотоке

В фотопотоке

В фотопотоке

В фотопотоке

В фотопотоке

В фотопотоке

В фотопотоке

В фотопотоке

В фотопотоке

В фотопотоке

В фотопотоке

В фотопотоке

В фотопотоке

В фотопотоке

















