Дом около 400 кв. м, полностью мой проект. КП Зелёная усадьба, Центральная, дом
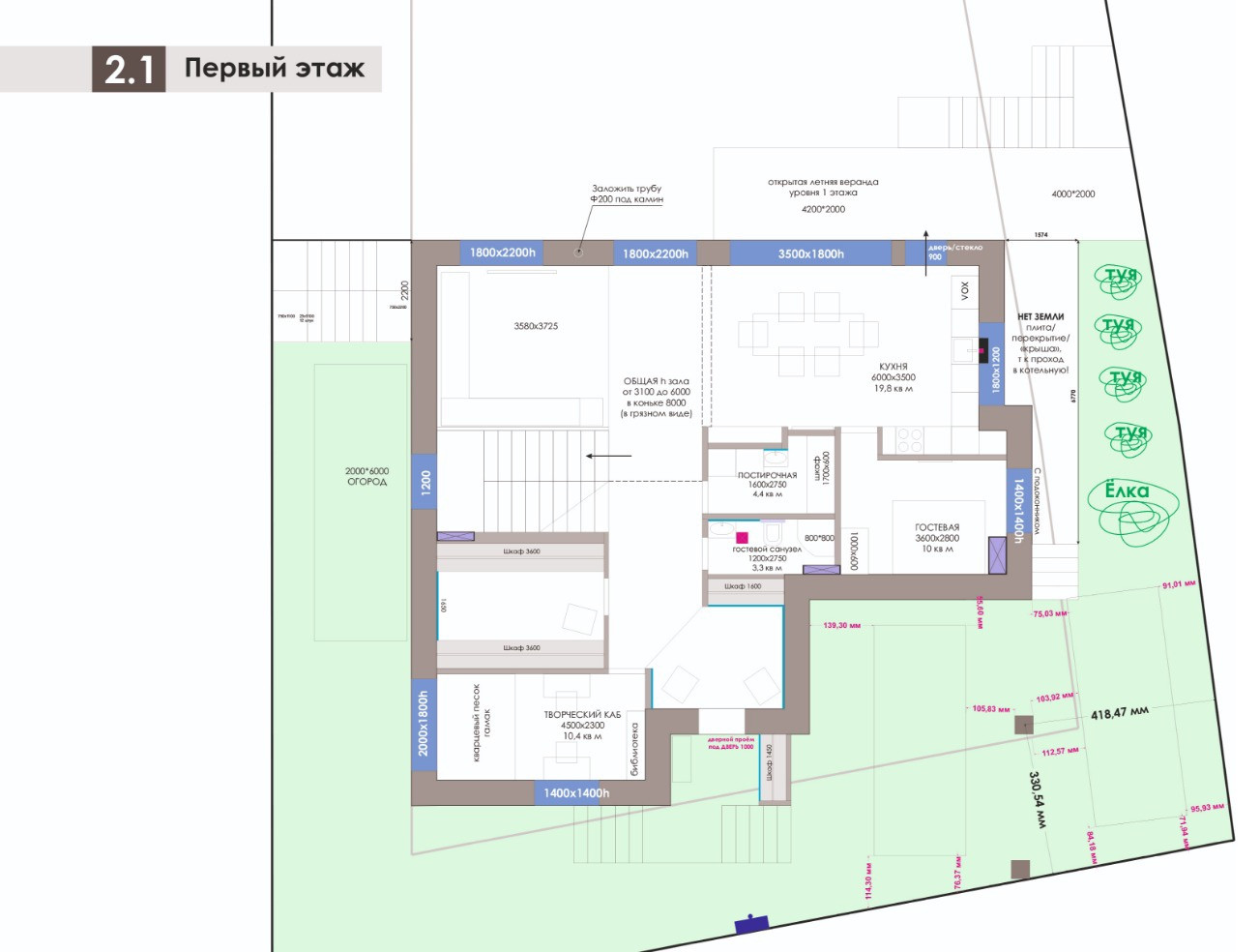
Курировала стройку(принимала все решения) я. Строительный проект был создан с полным пониманием гле будет лежать последняя вилка) Участок трапецевидный, в 5 соток, дом расположила максимально оставив освещённый (большую часть дня) участок. Перепад уровней участка 2,8 м, исходя из этого, сделала цокольный этаж, расположив в нём «вторичные» помещения: спа зону с сауной, купелью, сан узлом, раздевалка, с возможностью выхода на участок, котельная и помещение под «гаражное хранение». 1 этаж спроектировала с опорной колонной, дабы обеспечить 2-3 парковочных места, на нём расположила: рабочий кабинет для двоих, санузел, хозяйская гардеробная, постирочная, гостевая комната, и оупен спейс: кухня/гостиная/коридор/прихожая. Гостиная со вторым светом и высотой потолков 6-8 м. 2 этаж: две спальни для детей, с примыкающими санузлами для каждого, хозяйская спальня со своим санузлом, и доп спальня.
34 фотографии



































