Дом №206
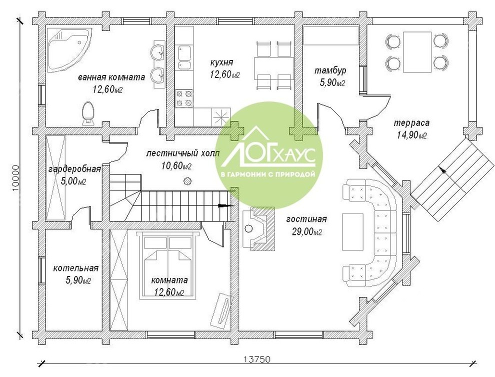
Рациональный подход к планировке создал максимально функциональный фамильный дом предназначенный для постоянного проживания. Этот проект достаточно популярен. . . На первом этаже прекрасная просторная гостиная с эркером, вместительная кухня-столовая, жилая комната, санузел, котельная, тамбур, лестничный холл, большая кладовка-гардеробная. . . На втором этаже три спальни, одна из которых с кабинетом, санузел и просторный холл.
Год реализации: 2015
9 фотографий









