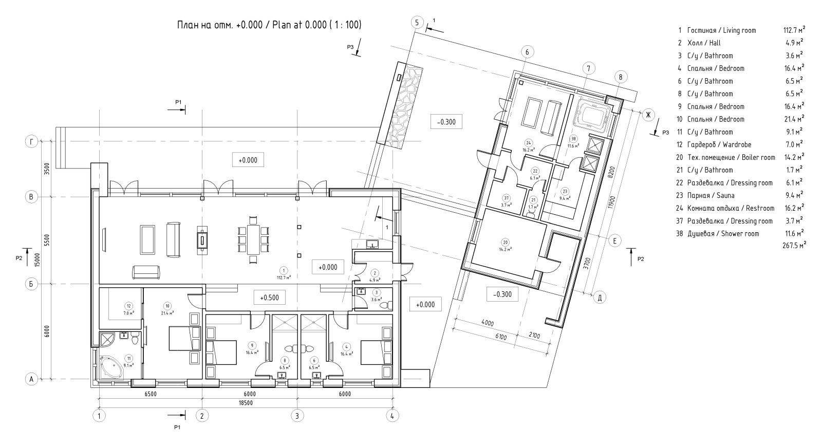
Дом на склоне
Современный жилой одноэтажный дом площадью 260 кв.м. с панорамным остеклением, спроектированный и построенный по индивидуальному проекту. Фундамент - монолитная ж/б плита, стены - блоки несъёмной опалубки. Кровля - плоская по клееным балкам. В отделке использовано дерево и натуральный камень. Проектирование и строительство 2017-2018гг.
Год реализации: 2018
24 фотографии
























