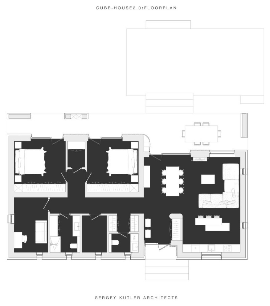
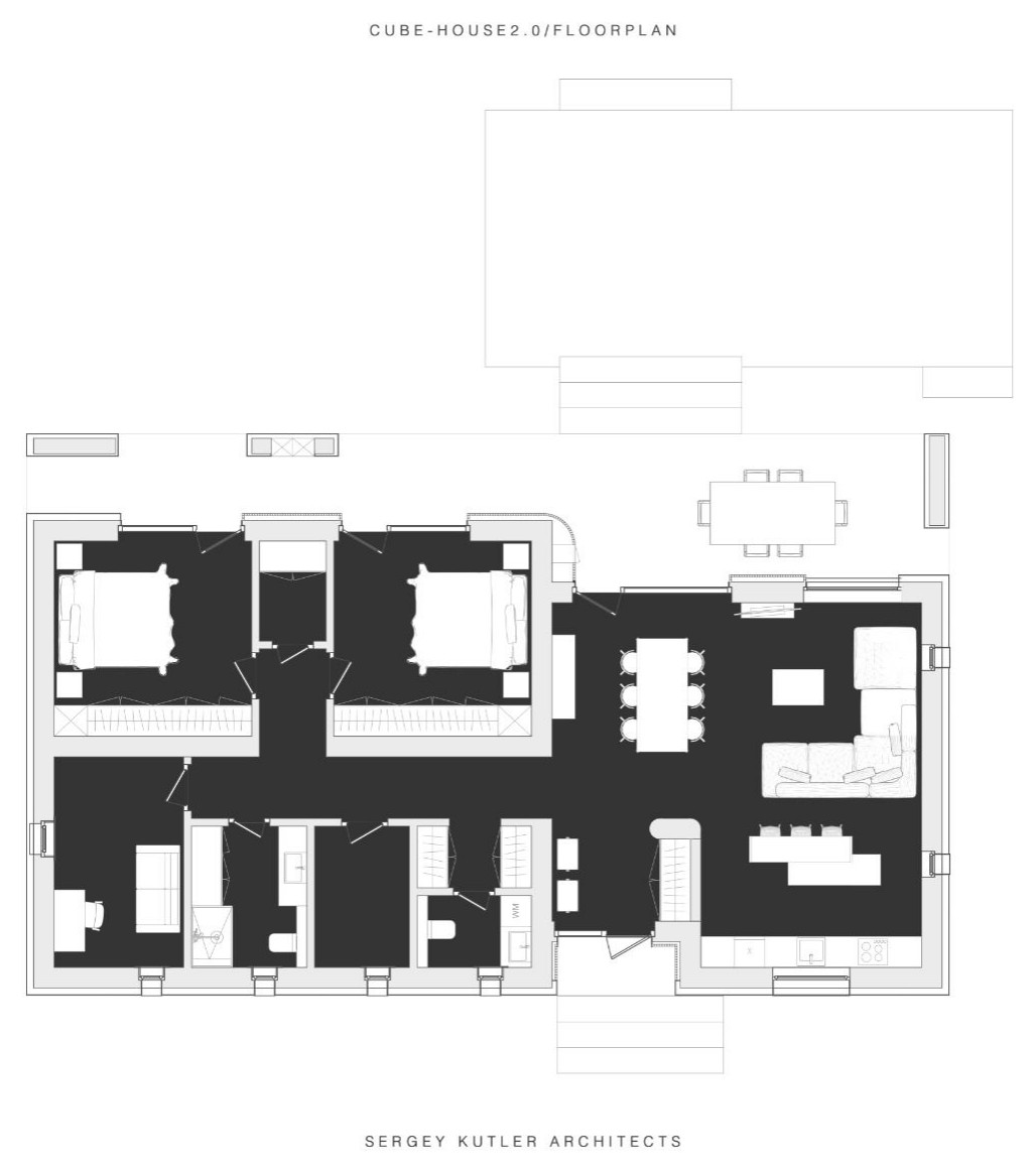
ДОМ-КУБ 2.0 | CUBE-HOUSE 2.0
Одноэтажный загородный дом из кирпича, органично вписавшийся в ландшафт одного из новых посёлков в Челябинске. В доме предусмотрено три спальни, два санузла гардеробные, хозяйственный блок с прачечной, кладовой при кухне и просторная гостиная-столовая с камином и выходом на террасу. Наружная отделка из фибро-цементных панелей и деревянной фасадной рейки.
Год реализации: 2024
Стоимость проектирования: 135 000 ₽
10 фотографий











