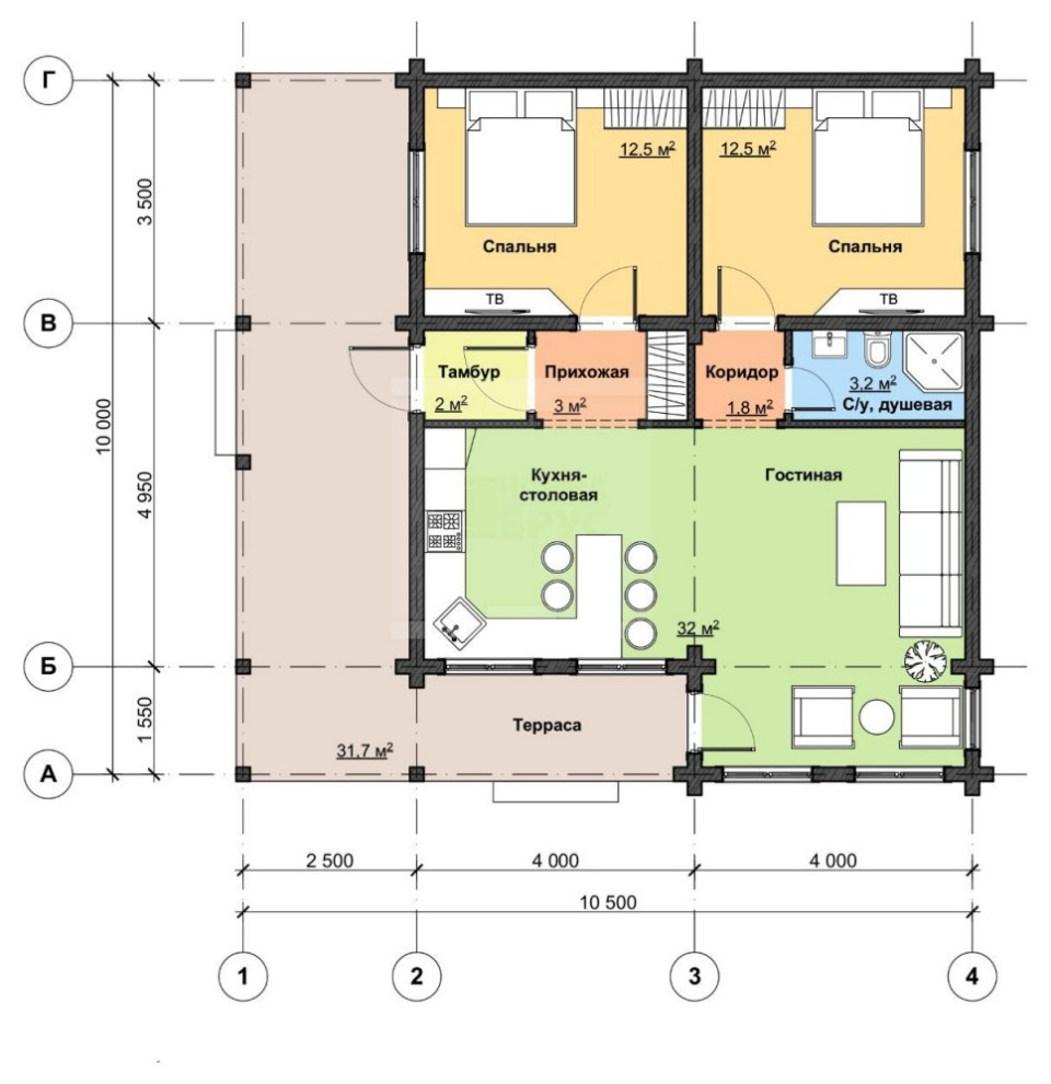
Профиль пользователяДом из сухого профилированного бруса НД1-41Год реализации: 20193 фотографииПоделитьсяСохранитьДом из сухого профилированного бруса НД1-41ПоделитьсяСохранитьДом из сухого профилированного бруса НД1-41ПоделитьсяСохранитьДом из сухого профилированного бруса НД1-41ПоделитьсяСохранить