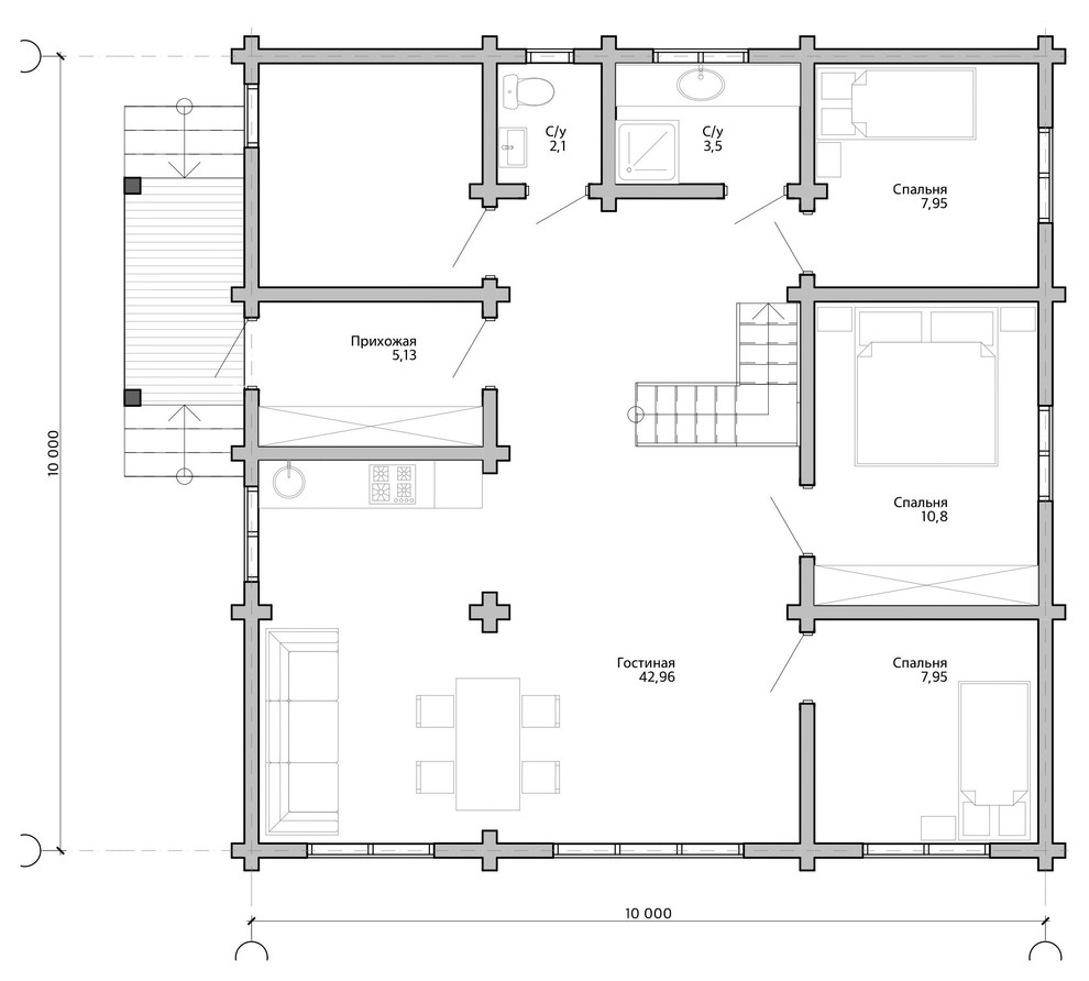
Профиль пользователяДом из профилированного бруса 180х142.Год реализации: 201710 фотографийПоделитьсяСохранитьДом из профилированного бруса 180х142.ПоделитьсяСохранитьДом из профилированного бруса 180х142.ПоделитьсяСохранитьДом из профилированного бруса 180х142.ПоделитьсяСохранитьДом из профилированного бруса 180х142.ПоделитьсяСохранитьДом из профилированного бруса 180х142.ПоделитьсяСохранитьДом из профилированного бруса 180х142.ПоделитьсяСохранитьДом из профилированного бруса 180х142.ПоделитьсяСохранитьДом из профилированного бруса 180х142.ПоделитьсяСохранитьДом из профилированного бруса 180х142.ПоделитьсяСохранитьДом из профилированного бруса 180х142.ПоделитьсяСохранить