Дом из оцилиндрованных бревен 197,03м². Размеры 16800 х 10200. Проект № 304
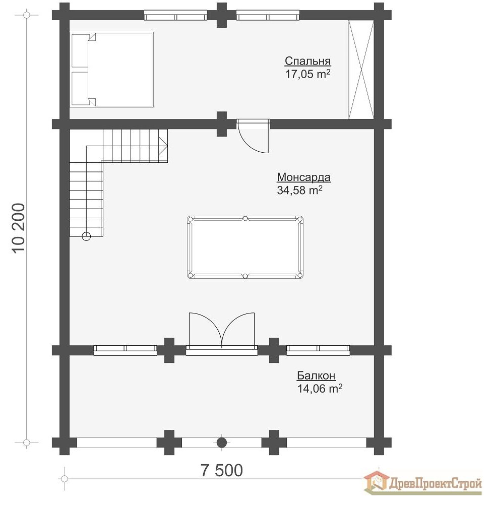
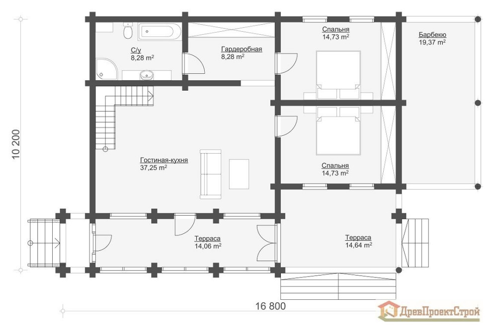
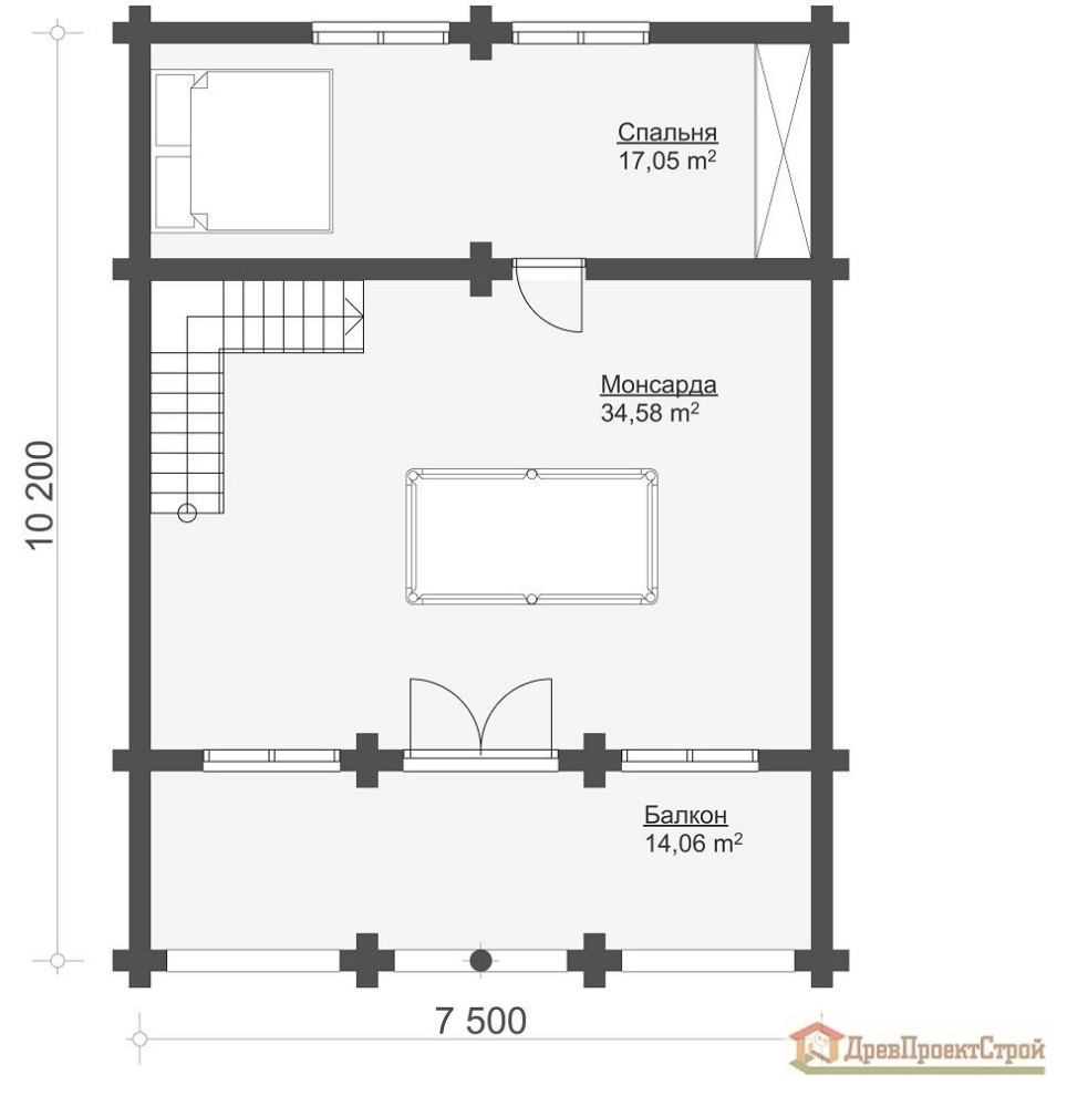
Дом из оцилиндрованных бревен 197,03м². Размеры 16800 х 10200. . . 1 этаж 131,34м². Терраса 14,06м², Терраса 14,64м², Кухня Столовая 37,25м², Спальня 14,73м², С/у 8,28м², Гардеробная 8,28м², Спальня 14,73м², Барбекю 19,37м². . 2 этаж 65,69м². Балкон 14,06м², Мансарда 34,58м², Спальня 17,05м². . . - Варианты изготовления стенового комплекта оцилиндрованное бревно естественной и камерной сушки от Ø- 200 до Ø-400 мм. . -Брус массив, профилированный естественной и камерной сушки. . -Ручная рубка. . - Брус клееный. . - Карельская сухостойная сосна «Кело», г. Костомукша. . Производства ООО ПСК «ДревПроектСтрой». .
Год реализации: 2018
Стоимость проектирования: 5 250 000 ₽
Тюмень - Пыть-Ях
7 фотографий








