Дом из клееного бруса Ландыши-143
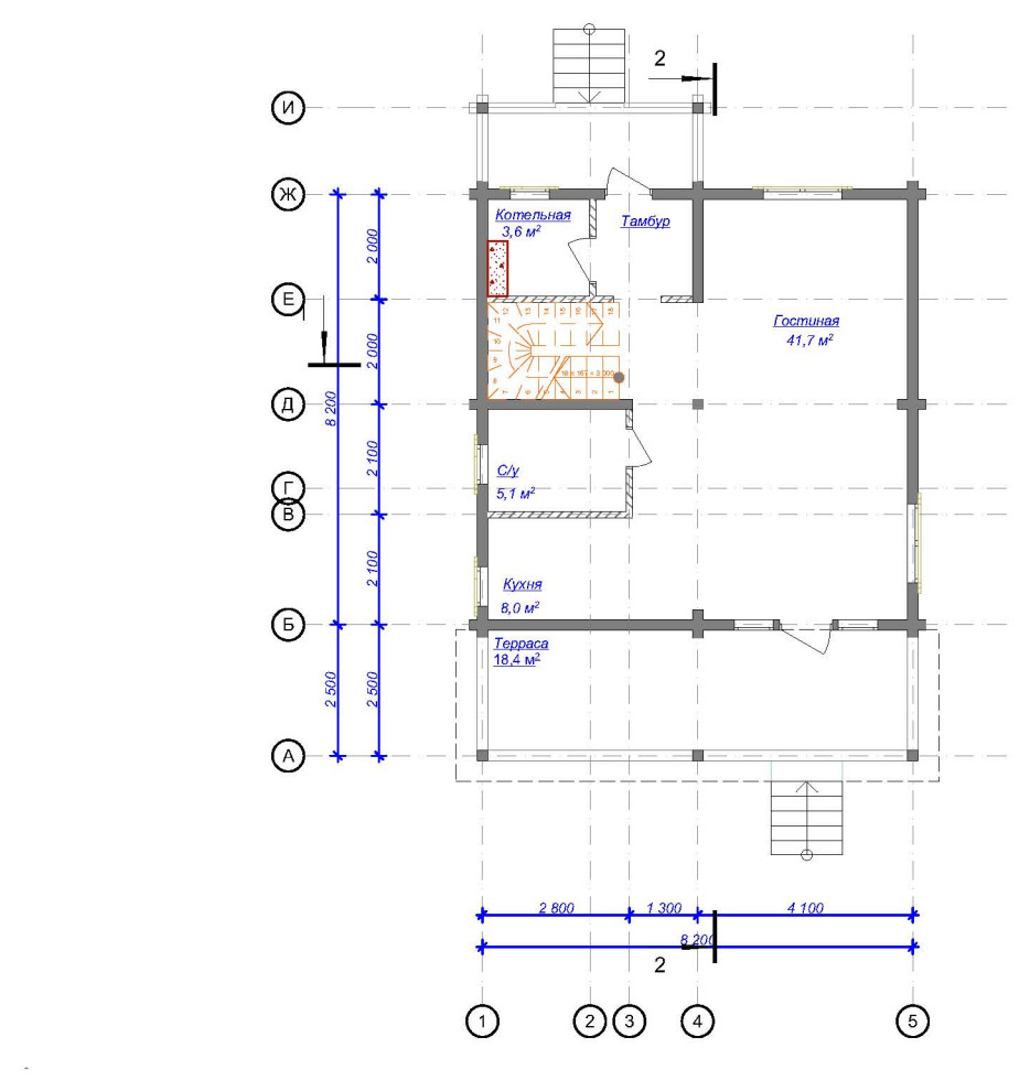
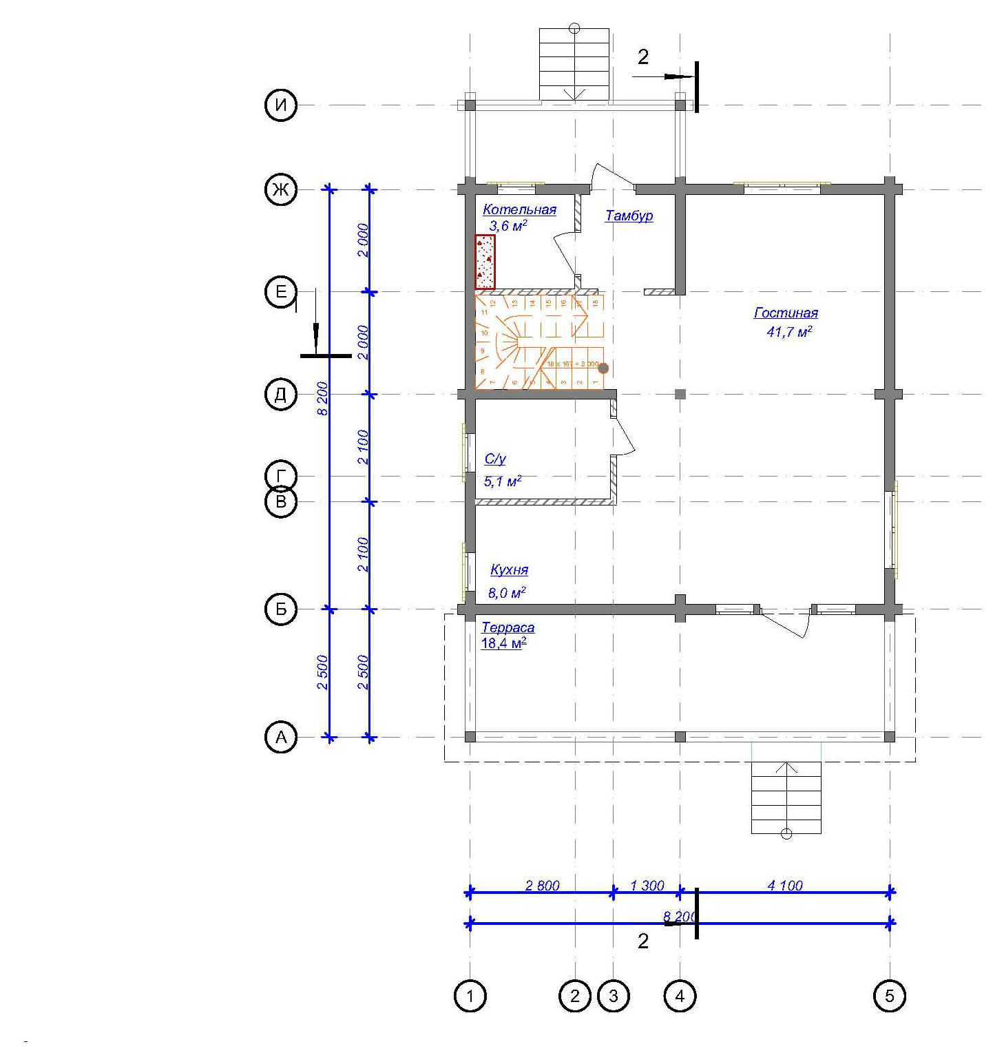
Этот дом из клееного бруса в Московской области по проекту Ландыши-143 был построен нашей компанией под ключ – установлены входные двери и икона, установлены наличники, выполнены входные группы и установлены перила террасы и крыльца. Дом полностью покрашен снаружи и внутри. . Рассмотрим подробнее деревянный дом из клееного бруса проекту Ландыши-143 . Общая площадь: 143,2 м2 . Площадь 1 этажа: 86,4 м2 . гостиная – 41,7 . крыльцо – 6,0 . кухня – 8,0 . c\у – 5,1 . тамбур – 3,6 . котельная -3,6 . терраса – 18,4 . Площадь 2 этажа: 56,8 м2 . спальня – 15,8 . спальня – 15,0 . спальня - 9,5 . холл – 13,2 . с/у – 3,3 . Подробнее о ценах и самом проекте можно узнать на нашем сайте: http://могута.рф/proekty/doma-ploshchadyu-100-150-kv-m/landyshi . https://youtu.be/vFDyAvXPSJI
4 фотографии





