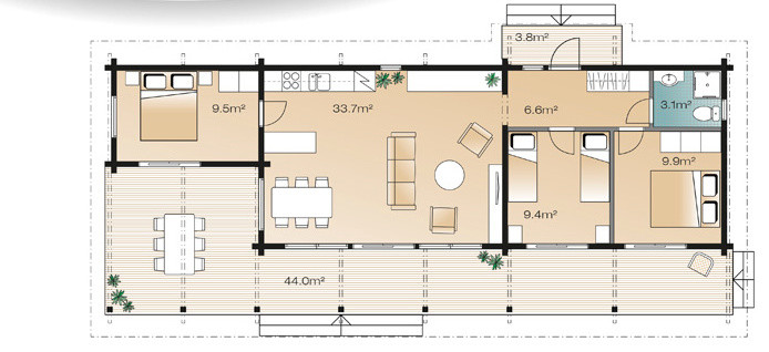
Дом из клееного бруса 118 м.кв.
Современный одноэтажный дом из клееного бруса.
Год реализации: 2016
Стоимость проектирования: 2 450 000 ₽
5 фотографий
Современный одноэтажный дом из клееного бруса.
5 фотографий

Дом из клееного бруса 215 м.кв.
Двух этажный дом из клееного бруса с баней 325 м.кв.
Дом из клееного бруса с навесом для машин 426 м.кв.
Дом из бревна ручной рубки 173 м.кв.
Одноэтажный дом из клееного бруса 168 м.кв.
Дача модерн из оцилиндрованного бревна 141 м.кв.
Дом из оцилиндрованного бревна 172 м.кв.