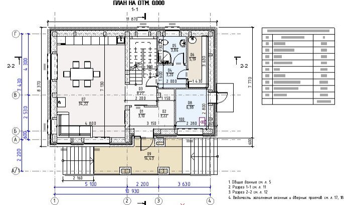
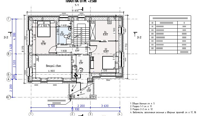
Профиль пользователяДом из газобетона с облицовкой из кирпича. 200 м2Год реализации: 2025Стоимость проектирования: 135 000 ₽5 фотографийПоделитьсяСохранитьДом из газобетона с обдицовкой из кирпича. 200 м2ПоделитьсяСохранитьДом из газобетона с обдицовкой из кирпича. 200 м2ПоделитьсяСохранитьДом из газобетона с обдицовкой из кирпича. 200 м2ПоделитьсяСохранитьДом из газобетона с обдицовкой из кирпича. 200 м2ПоделитьсяСохранитьДом из газобетона с обдицовкой из кирпича. 200 м2ПоделитьсяСохранить