Дом, где живет весна
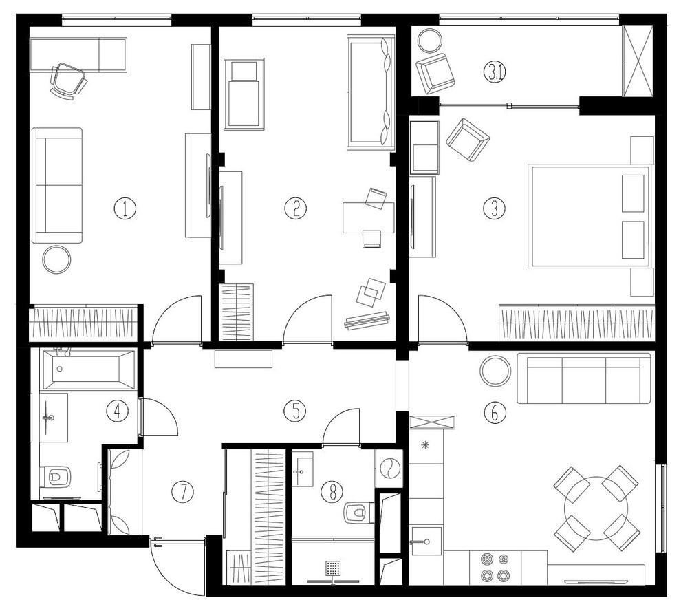
Весеннее настроение, которым пронизано оформление квартиры, передалось автору проекта, дизайнеру Наталье Кореневой от ее заказчиков. Теплая семейная атмосфера и радость от долгожданного приобретения собственного жилья воплотились в этом солнечном и уютном интерьере. . Первоначальный план квартиры площадью 96 кв.м. предполагал одну гостиную и две спальни. Однако потребности большой семьи заказчиков внесли свои коррективы в планировочное решение. Альтернативой полноценной гостиной стала небольшая, но уютная зона отдыха, совмещенная с кухней. На оставшейся площади удалось разместить спальню родителей и две детских комнаты - для сына-подростка и двух малышей, а также два санузла и гардеробную. . Интерьер квартиры наполнен светом и воздухом, в отделке преобладают пастельные тона и мягкие фактуры, практически вся мебель в проекте создана на заказ по эскизам дизайнера. .
27 фотографий


























