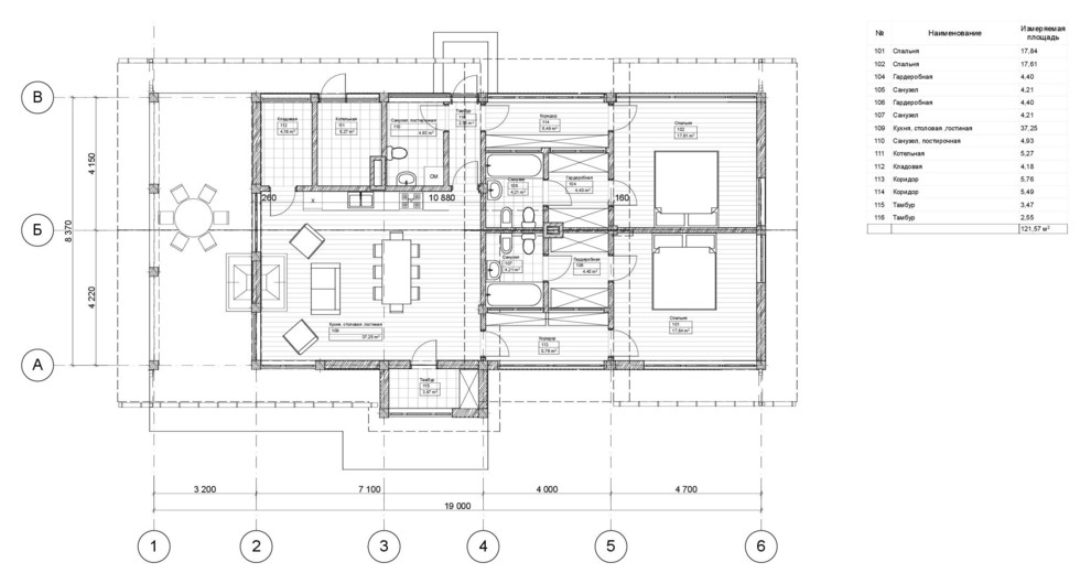
Дом "Деревенский"

Год реализации: 2016
Стоимость проектирования: 2 450 000
photo

4 фотографии

Дом "Деревенский"
Дом "Деревенский"
Дом "Деревенский"
Дом "Деревенский"
Дом "Деревенский"
Дом "Деревенский"
Дом "Деревенский"
Дом "Деревенский"
Фоновое изображение профиля Александр Плуталов
Фото профиля Александр Плуталов