Дом-баня с комнатой отдыха Здравица-123
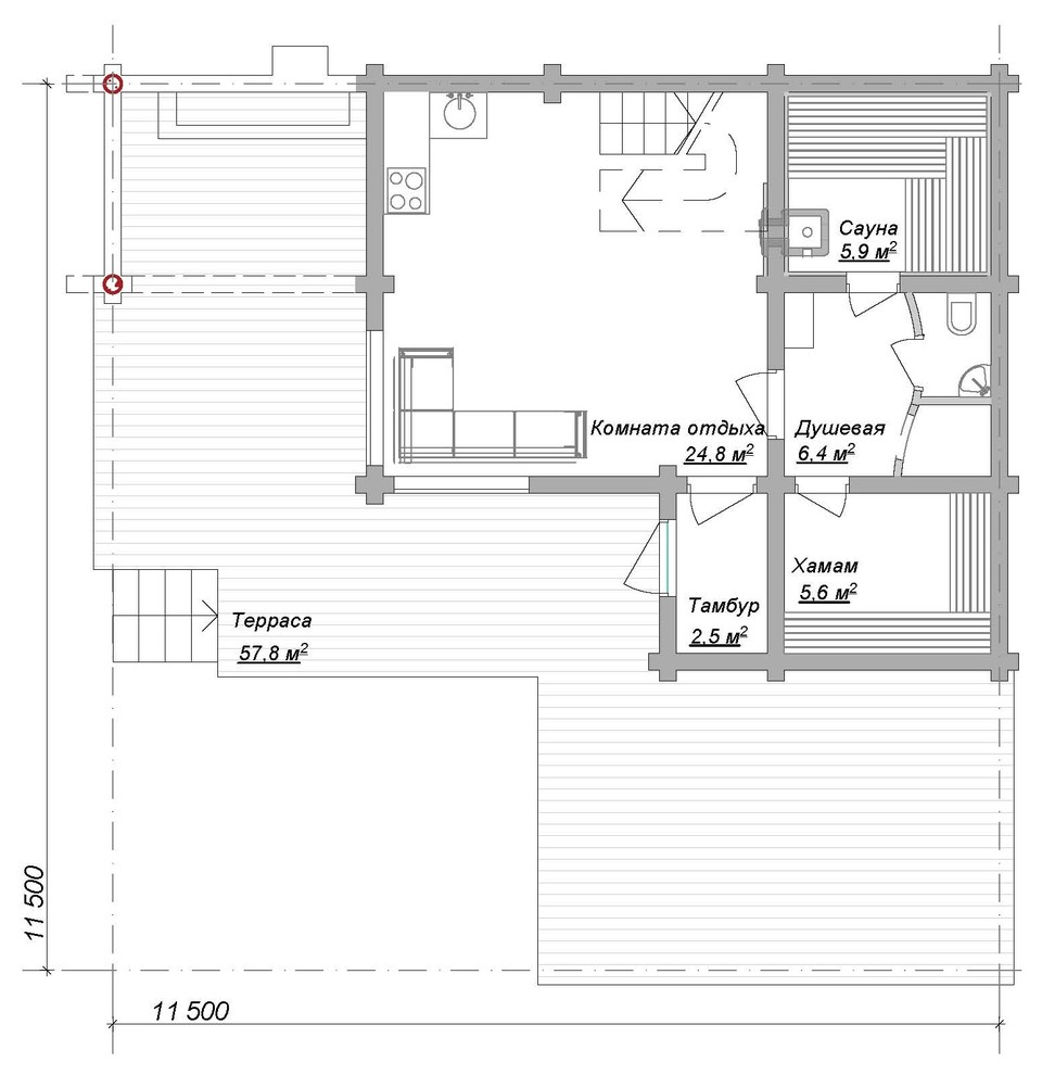
Проект бани из бруса. Баня с комнатой отдыха Здравица-123 . Проект бани с комнатой отдыха Здравица-123 от компании Могута https://могута.рф изначально создан в оцилиндрованном бревне. Однако, это нисколько не мешает воплотить его в брусе. Доказательством этому служит реализованный нами проект такой бани из бруса в Московской области Здравица-116 https://могута.рф/proekty/bannye-doma-i-bani/zdravitsa-116 . На планировках нашей бани в комнате отдыха расположена антресоль со спальным местом и баня может быть использована в качестве гостевого дома. Кроме комнаты отдыха в проекте этой бани из бруса, конечно же есть душевая и сауна, а также хамам. На обширной террасе обустроена зона барбекю. На планировке лестница, ведущая на антресоль имеет форму винтовой, но можно сделать просто приставную лестницу для экономии места в комнате отдыха. Проекты бань из бруса от компании Могута https://могута.рф всегда были интересными в своих решениях и формах, однако баня с комнатой отдыха Здравица-123 заняла особенное место в нашей коллекции. . #деревянныедомаМогута – проекты бань из бруса . Общая площадь: 123,9 м2 . Площадь 1 этажа: 103 м2 . Кухня гостиная – 24,8 м2 . Сауна - 5,9 м2 . Душевая – 6,4 м2 . Хамам – 5,6 м2 . Тамбур – 2,5 м2 . Терраса – 57,8 м2 . Площадь 2 этажа: 20,9 м2 . Антресоль – 20,9 м2 . Цена в клееном брусе толщиной 160 мм – от 2 850 000 руб . Цена в сухом профилированном брусе 190 мм – от 2 550 000 руб . Цена в оцилиндрованном бревне 220 мм – от 2 450 000 руб . . В стоимость входит: . - свайно-винтовой фундамент . - стены из бруса или бревна . - черновые полы . - крыша из гибкой черепицы с утеплением . Подробнее об этой бане можно узнать на странице нашего сайта https://могута.рф/proekty/bannye-doma-i-bani/zdravitsa . +7 910 790 21 51 .
4 фотографии





