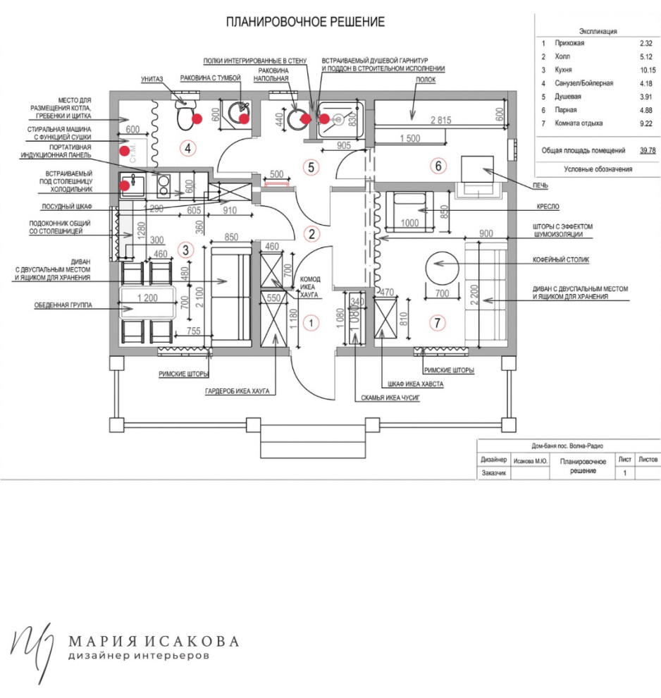
Дом-баня площадью 39 м2: инженерия ( трубы)
Особенную гордость в проектировании дома-бани испытываю за грамотное расположение инженерии, в частности труб. . . Все трубы в доме выполнены из сшитого полиэтилена STOUT и расположены либо в каркасной перегородке, либо в стяжке пола. Что позволило полностью исключить их из вида. . . Мокрые зоны в доме спроектированы таким образом, чтобы все они были сосредоточены вблизи друг к другу. Таким образом сокращаются расходы на черновую сантехнику. Также это позволяет избежать в доме сильного промерзания, поскольку когда отопительная либо водопроводная трасса слишком длинная, то риск, что она замерзнет больше, нежели когда все эти коммуникации сосредоточены в одном месте.
8 фотографий









