Дом Аржаники
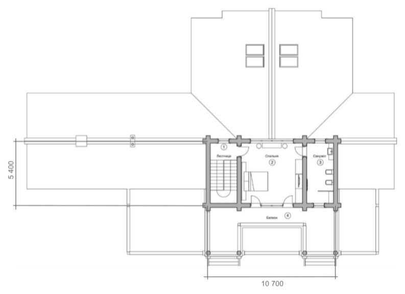
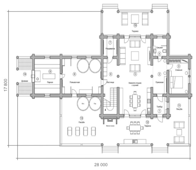
Общая площадь: 427,5 м2 . Площадь помещений: 215,5 м2 . Этажей: 2 . Диаметр бревна: 28-30 см . Срок строительства: 4-6 месяца . Гарантия: 25 лет . Архитектор: Виталий Ангаткин .
Год реализации: 2021
20 фотографий
Общая площадь: 427,5 м2 . Площадь помещений: 215,5 м2 . Этажей: 2 . Диаметр бревна: 28-30 см . Срок строительства: 4-6 месяца . Гарантия: 25 лет . Архитектор: Виталий Ангаткин .
20 фотографий
