Dom 173
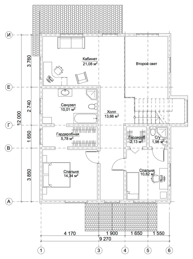
Деревянный экологичный дом 173 м2: 3 спальни, 3 с/у. Класс энергоэффективности А+. Производится на фабрике с высоким качеством по модульно-панельной технологии и быстро монтируется на готовом фундаменте. Без усадки. Обеспеченные гарантии. Срок контракта под ключ 3 - 4 месяца в любой сезон.
Год реализации: 2017
Стоимость проектирования: 5 250 000 ₽
2 фотографии



