ДОБРЫЕ ТРАДИЦИИ
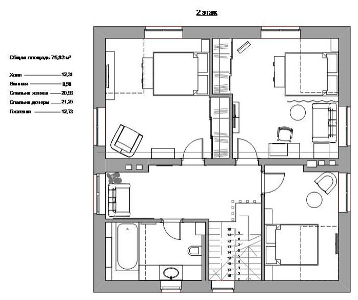
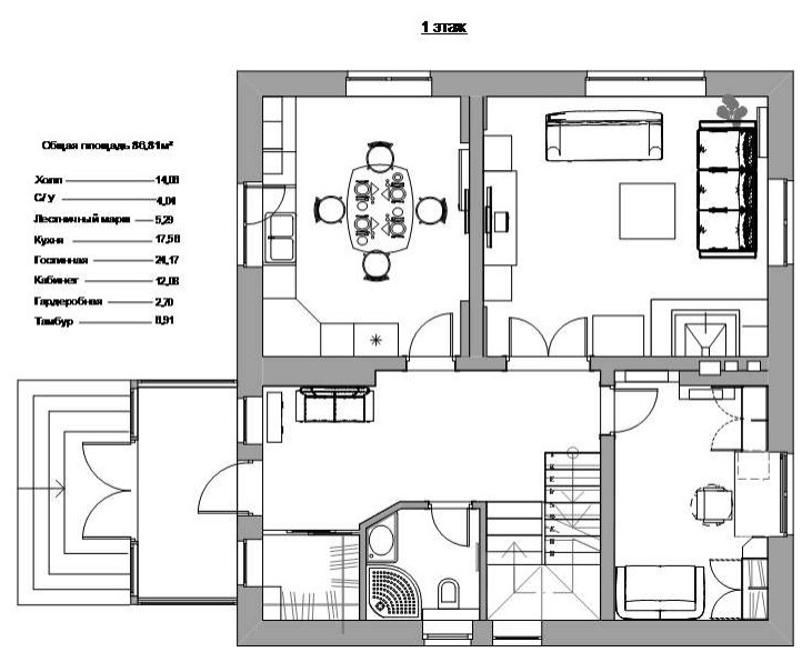
Дом находится в Московской области на участке со сложным, интересным ландшафтом. В выборе участка сказалось увлечение хозяйки ландшафтным дизайном. . В доме сочетается уют прованского стиля и разумная функциональность. Интерьер наполнен очарованием загородной жизни, светом и воздухом. . . Кухня выделена в отдельное помещение, так как хозяйка любит готовить и не хотела, чтобы запахи и шум доносились в другие помещения дома. Камин в гостиной с панорамной угловой топкой выполнен в лаконичном дизайне и вносит нотку современности в традиционную обстановку. . . Из коридора изящная лестница ведет на второй этаж в приватную зону, где расположены спальня хозяев, спальня дочери и гостевая комната. В этих комнатах тюли, закрывающие скос мансардной крыши, образуют легкий полог, организующий спальное место. В холле расположена зона отдыха, напоминающая итальянский дворик: ставни, состаренная плитка, диван с ротангом и уличный фонарь. . . В оформлении ванных комнат использована плитка, имитирующая камень, старинную мозаику и роспись. . Дом наполнен атмосферой, располагающей к отдыху после трудовых будней. . . По планировке помещений важно было сбалансировать соотношение общей и полезной площади, продумать оптимальный набор функциональных помещений. . Общая площадь: 162,64 кв.м.
30 фотографий























