Дизайн-проект Загородного дома в г. Владивосток
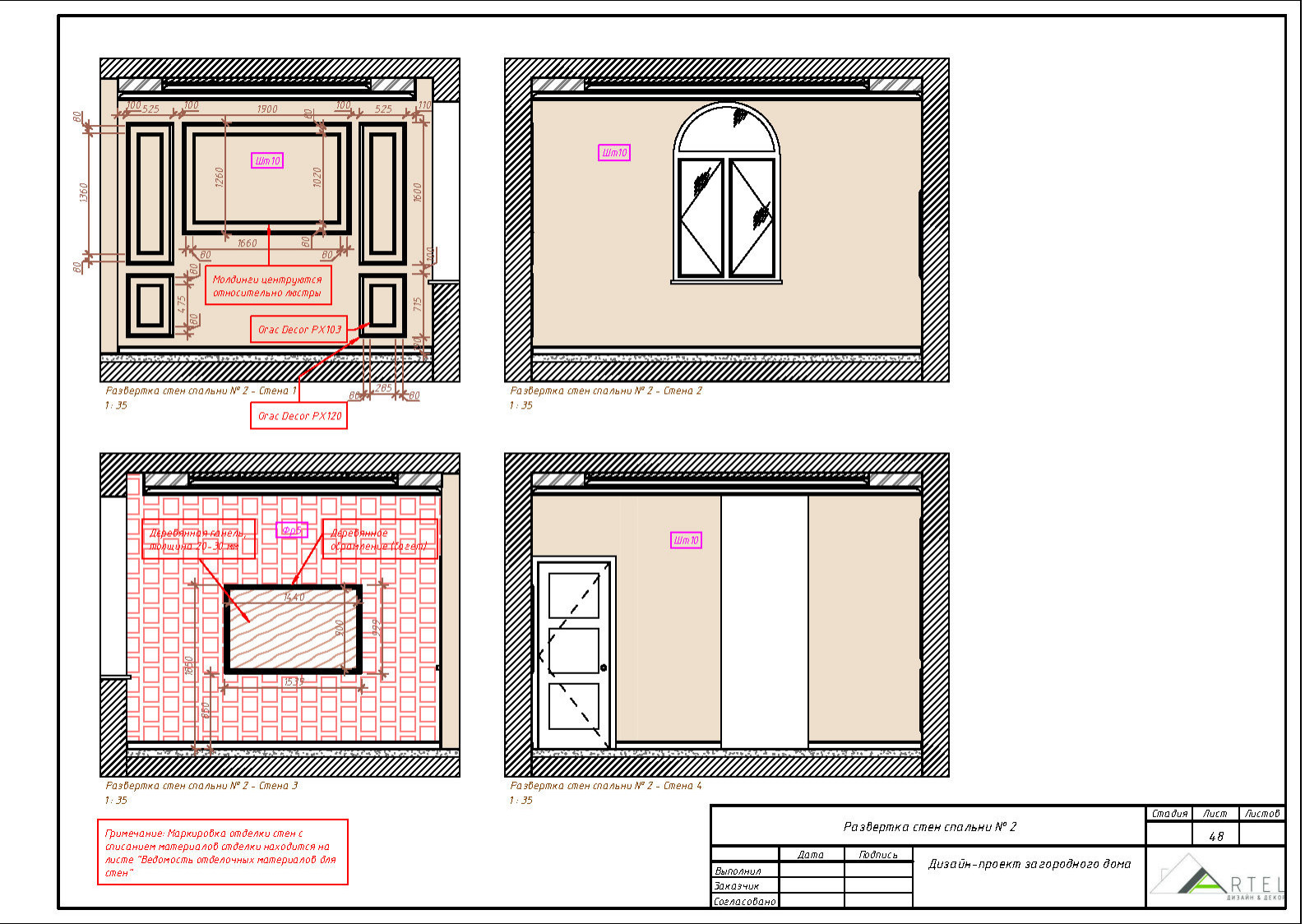
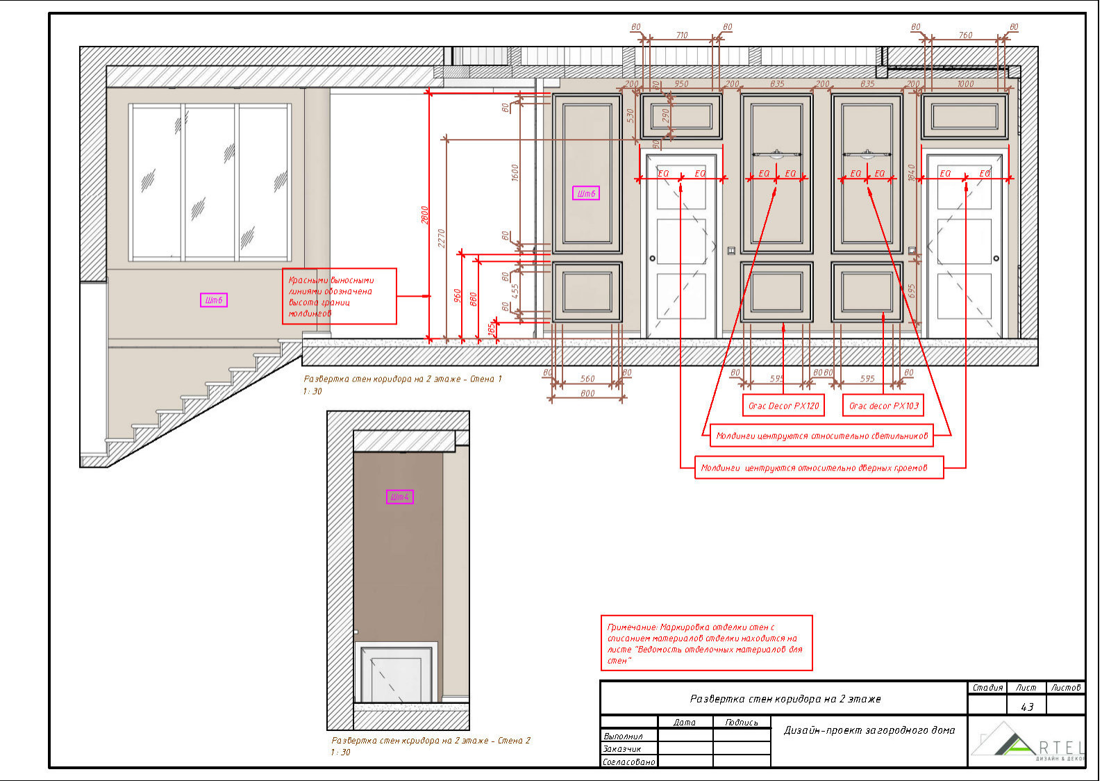
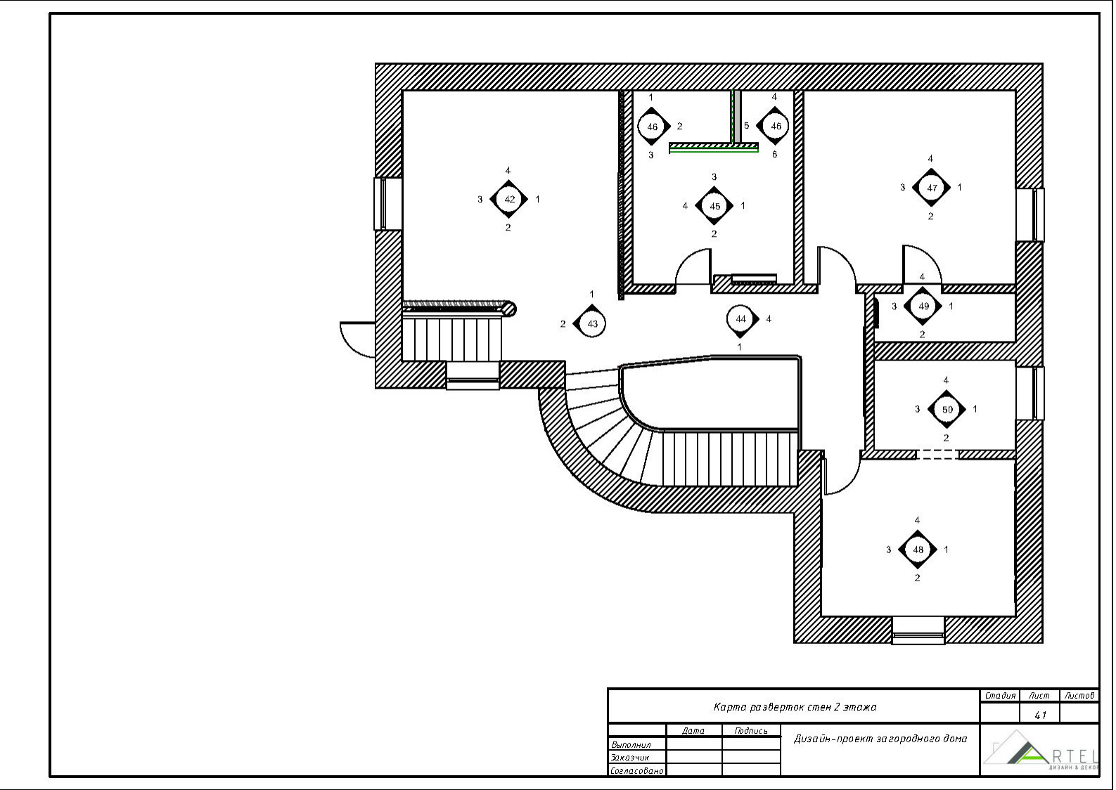
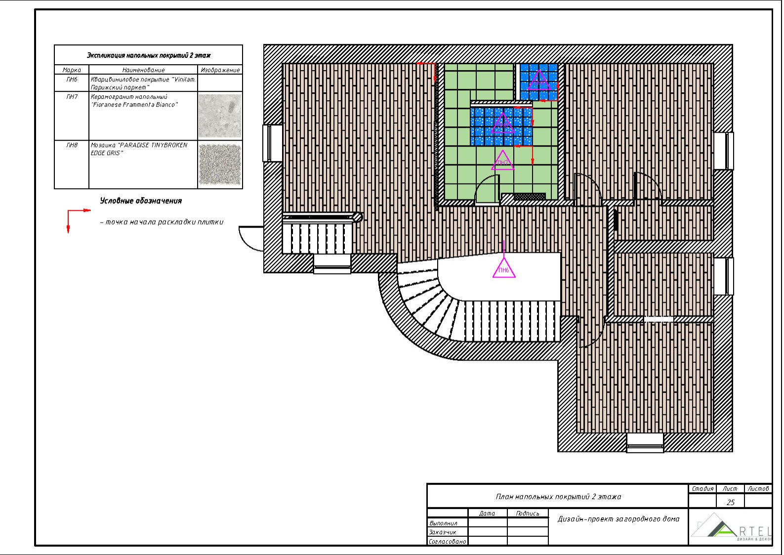
Дизайн-проект загородного дома общей площадью 220 кв.м. Дизайн выполнен в средиземноморском стиле (дом расположен в прибрежной зоне).
Год реализации: 2019
Стоимость проектирования: 135 000 ₽
г. Владивосток, 26 Щитовая улица
77 фотографий


















































