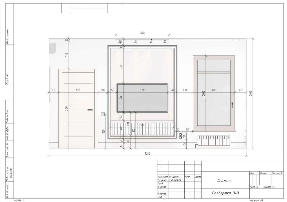
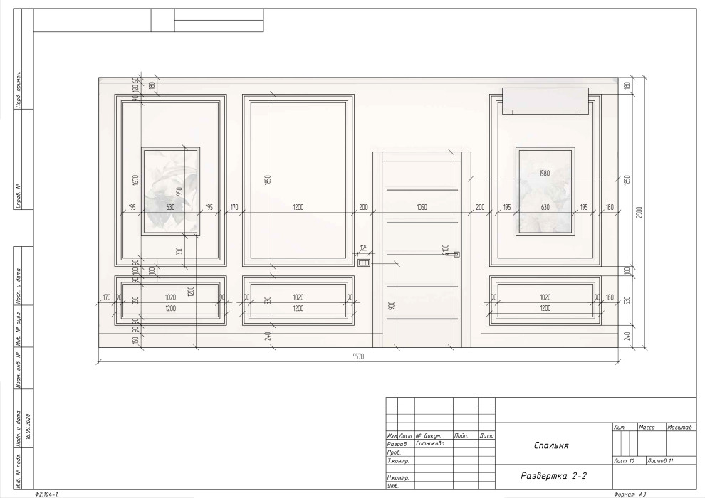
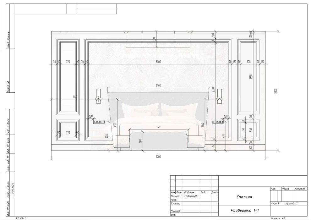
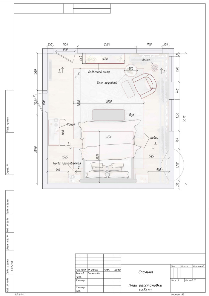
Дизайн-проект спальни 30 м²
Дизайн-проект спальни для зрелой пары. Интерьер выполнен с полным обновлением старого ремонта. Сохранены двери и напольное покрытие. Главным при создании интерьера были - светлые тона и яркое акцентное пятно. Весь дизайн-проект выполнен с учетом всех пожеланий заказчиков.
Год реализации: 2020
Стоимость проектирования: 34 999 ₽
24 Песчаная улица
10 фотографий










