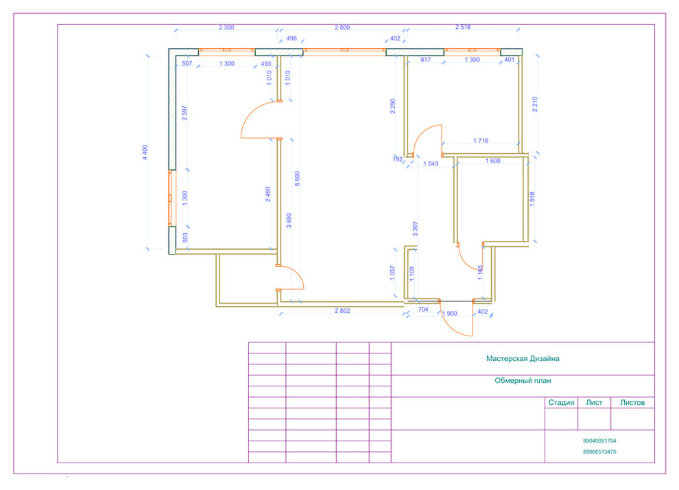
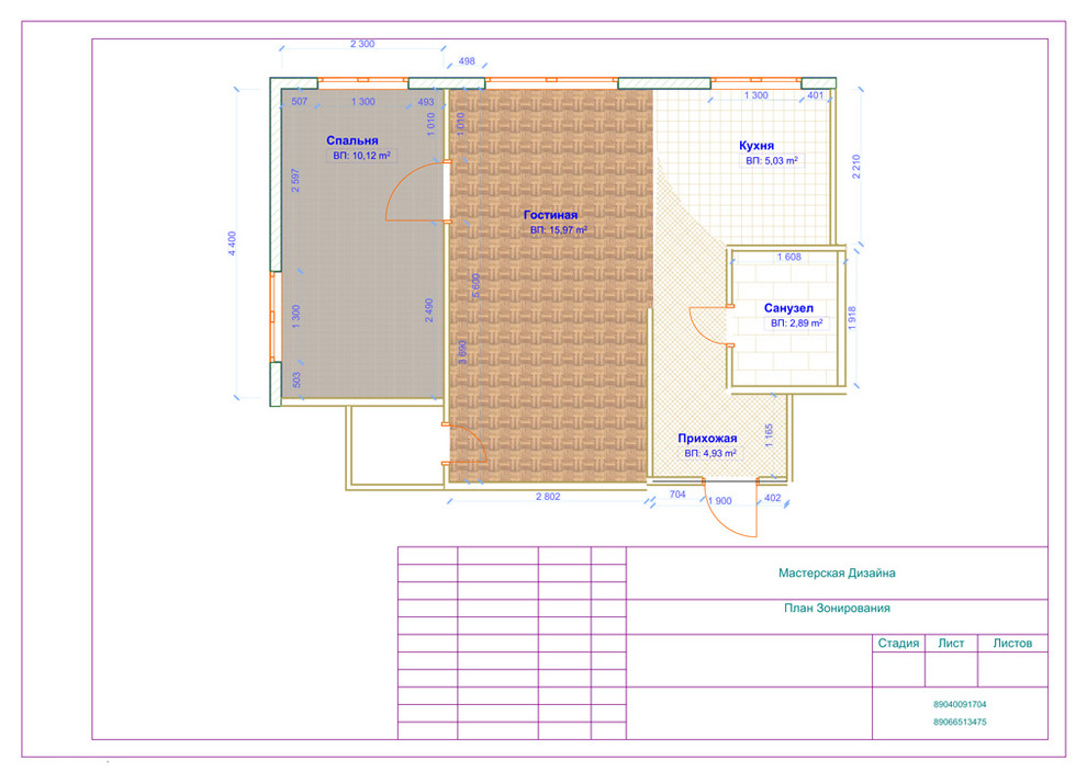
Дизайн-проект квартиры 40кв.м., перепланировка.
Квартира 40кв.м., распечатанный дизайн-проект с чертежами, спецификацией, развёрткой и визуализацией обошелся нашим клиентам в 16000р.
18 фотографий
Квартира 40кв.м., распечатанный дизайн-проект с чертежами, спецификацией, развёрткой и визуализацией обошелся нашим клиентам в 16000р.
18 фотографий
