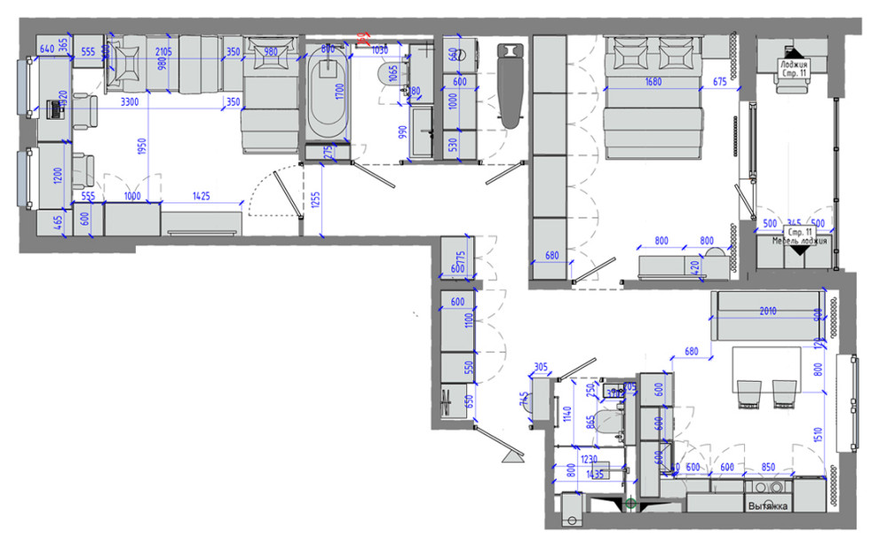
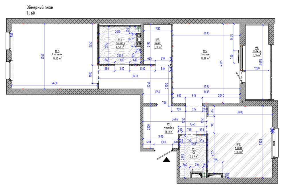
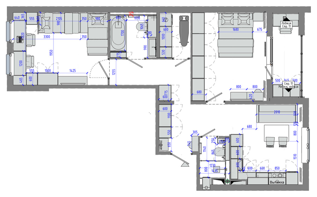
Дизайн-проект двухкомнатной квартиры в современном стиле
Наши Клиенты - интеллигентная семья молодых научных работников с двумя детьми, которые купили просторную двухкомнатную квартиру в новостройке в ближайшем пригороде в Санкт-Петербурга.
Год реализации: 2023
Стоимость проектирования: 135 000 ₽
г. Санкт-Петербург, Переведенская улица
44 фотографии













































