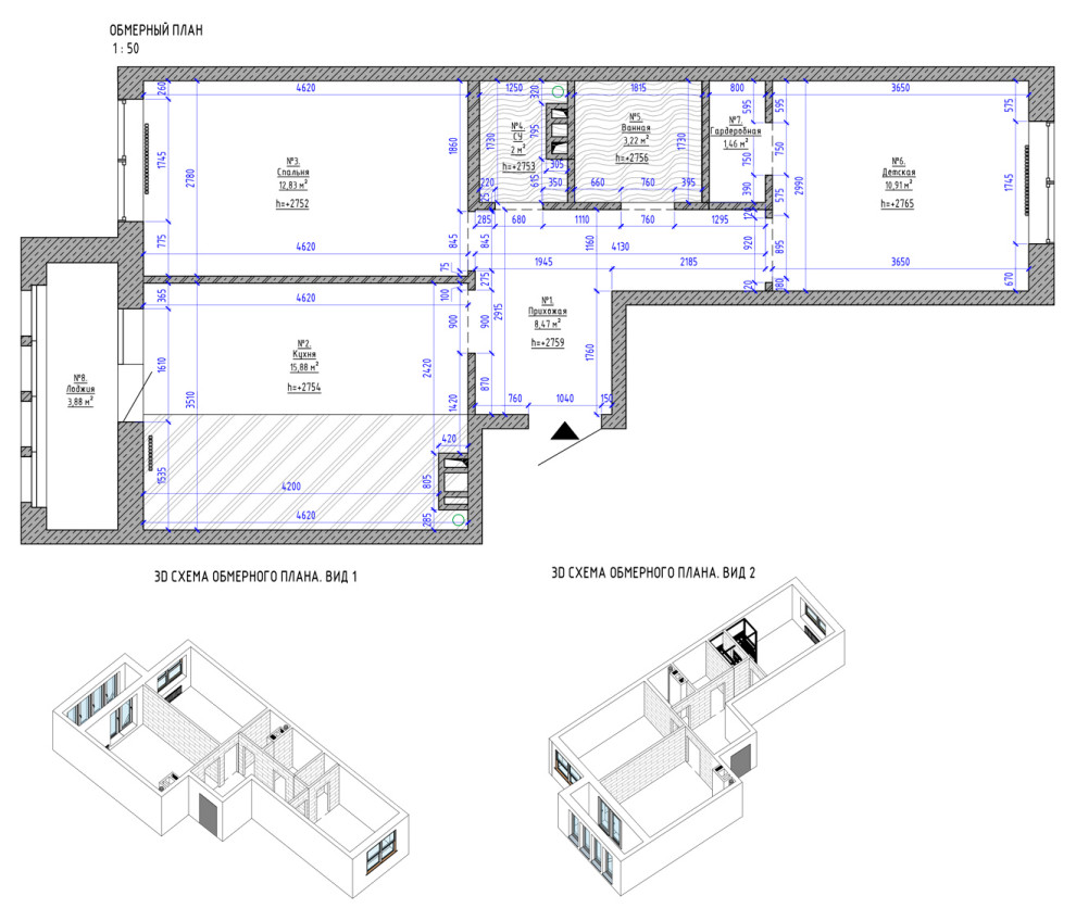
Дизайн-проект двухкомнатной квартиры для семьи с детьми в ЖК "Модум"
Наши Клиенты - активные молодые родители из Челябинска, решившие перебраться всей семьей в Санкт-Петербург, включая родителей и сестру, для которых приобрели отдельную квартиру и также заказали у нас дизайн-проект. Поскольку у супруга бизнес в мебельном производстве, то в плане конструктива и дизайна мебели мы были не ограничены.
Год реализации: 2023
Стоимость проектирования: 135 000 ₽
22 фотографии























