Дизайн-проект 3-хкомнатной квартиры
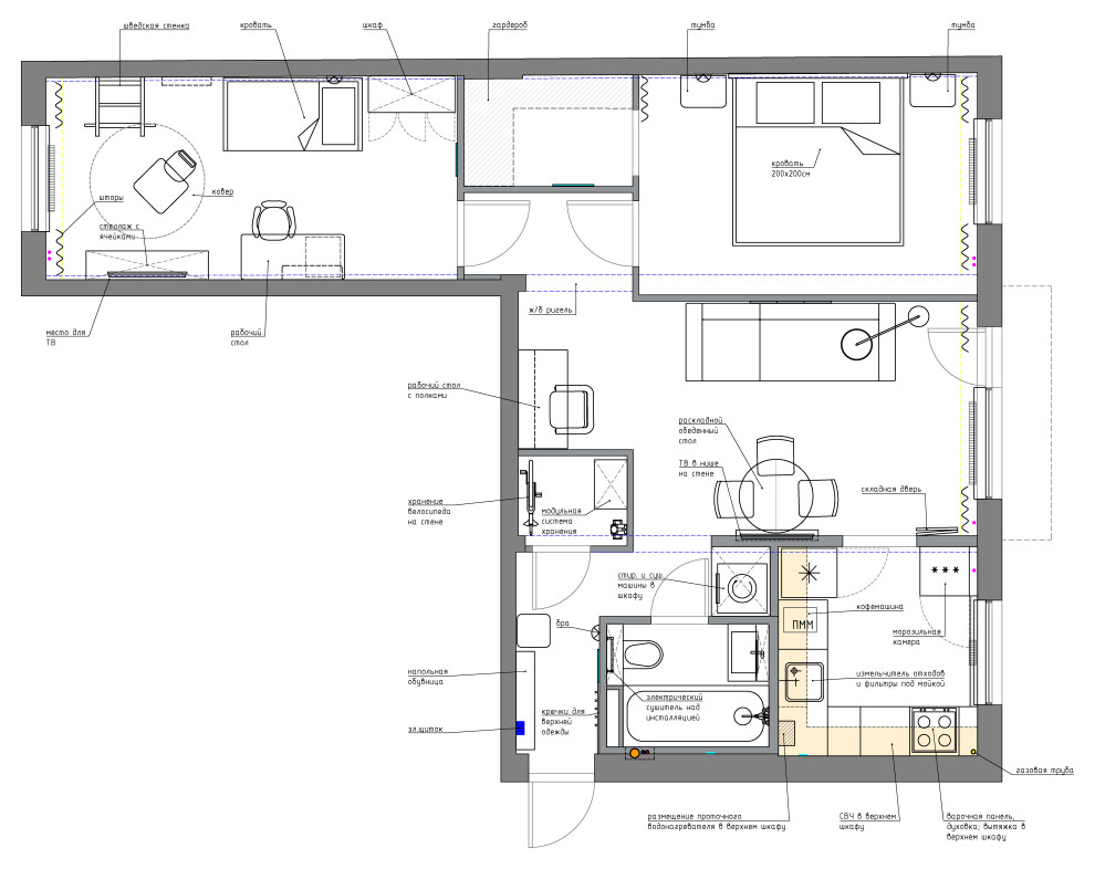
На площади 59кв.м получилось разместить гостиную с большим диваном и рабочим местом, кухню, спальню со свободным подходом к кровати и мини-гардеробной, санузел с ванной длиной 180см, постирочный шкаф, кладовку для велосипеда и детскую. . В гостиной за счет утолщения стены избавились от выступающего ригеля под потолком и организовали нишу для телевизора с полочкой. . Стиральную и сушильную машины в колонне разместили в коридоре. . Основная отделка нейтральная - оттенок белого на стенах, серо-бежевый в прихожей. У заказчиков есть диван изумрудного цвета, к нему подобрали оттенок кухонного гарнитура и цвет стен спальни. В детской для девочки добавили сиреневый и розовый цвета.
Год реализации: 2025
г. Санкт-Петербург
10 фотографий











