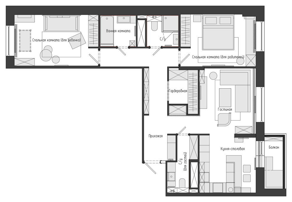
Дизайн-проект. 3-хкомнатная квартира в ЖК "Левобережный". Тула. 2017 г.
Бюджет реализации проекта в диапазоне 3-5 млн.руб.
Год реализации: 2017
Стоимость проектирования: 135 000 ₽
20 фотографий
Бюджет реализации проекта в диапазоне 3-5 млн.руб.
20 фотографий

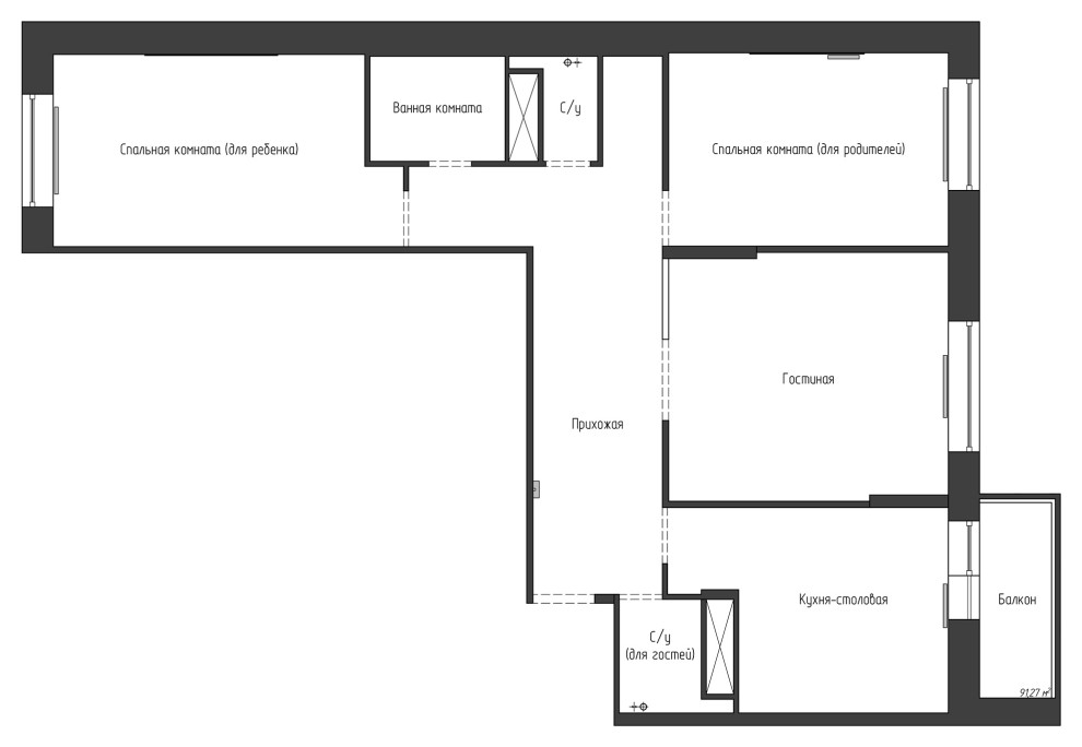
Дизайн-проект. Из 2-шки в 3-шку. ЖК "Левобережный". Тула. 2018 г.
Эскизный проект. Павильон-барбекю из клееного бруса. Тульская область. 2020 г.
Эскизный проект. Одноэтажный дачный дом. Тульская область. 2020 г.
Дизайн-проект. Общая комната в реконструируемом доме. Венгрия. 2019 г.
Дизайн-проект. 2-хкомнатная квартира на набережной. Москва. 2019 г.
Дизайн-проект. 3-хкомнатная квартира в ЖК "Государев Дом". Видное. 2018 г.
Проектирование фасадов. Классический стиль. 2018 г.