Дизайн однокомнатной квартиры в стиле Mid-century
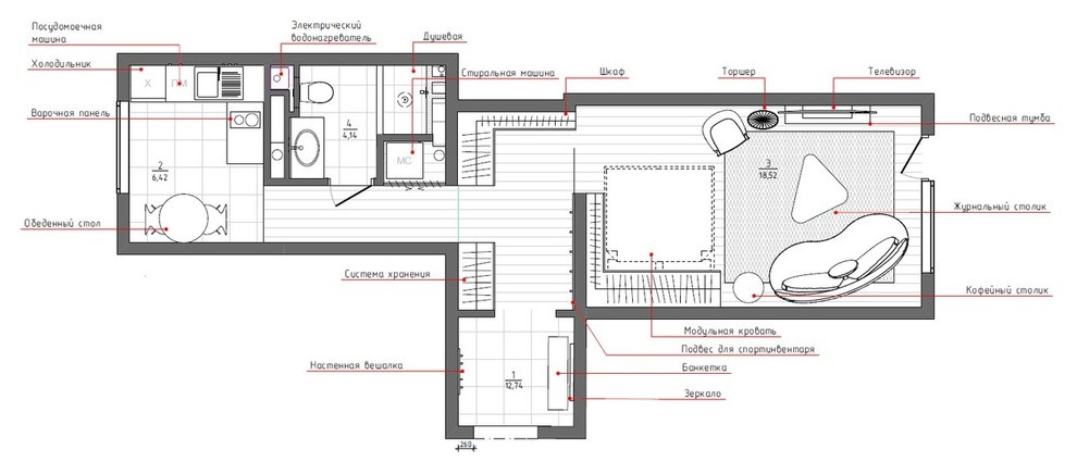
Первое, на что мы обратили внимание - это функциональное зонирование. Прихожую мы разделили на зону быстрой прихожей и зону хранения. В последней мы постарались разместить необходимое количество гардеробных систем в пользу открытого пространства гостиной. Её мы также разделили на две зоны: зону отдыха и спальную зону, в которой мы замаскировали полноценную кровать-трансформер. . Стилистически наше предложение интерьера представляет собой аллюзию на mid century. Стиле, философией которого является создание комфортных интерьеров для среднестатистической семьи с использованием новых технологий производства и максимально доступных предметов. Эстетике mid century свойственна любовь к натуральным материалам, высокому качеству мебели и природной цветовой гамме. Однако, основой его всё-таки является большая практичность. . Лёгкость, оригинальность и выразительность этого стиля становятся всё более востребованными в современном мире." . Чаще всего наши современные интерьер эклектичен, это микс и сочетание стилей. Стиль Mid-century modern особенно актуален для квартир с современной, ассиметричной планировкой"
19 фотографий


















