Дизайн маленькой однушки
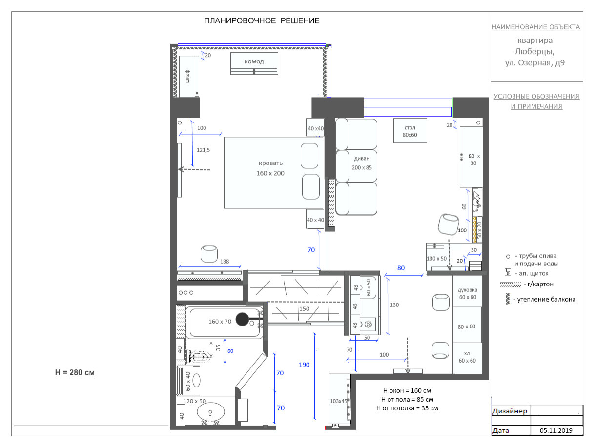
Как комфортно разместиться в маленькой квартире ? Этот вопрос волнует многих. Один из вариантов объединить балкон и сделать 2 комнаты. Готовый проект уже со всеми схемами стоит 25 000 руб.
Год реализации: 2022
Стоимость проектирования: 135 000 ₽
47 фотографий















































