Дизайн квартиры по ул.Раскольникова с реконструкцией балкона
Год реализации: 2019
г. Астрахань, улица Раскольникова
16 фотографий
16 фотографий

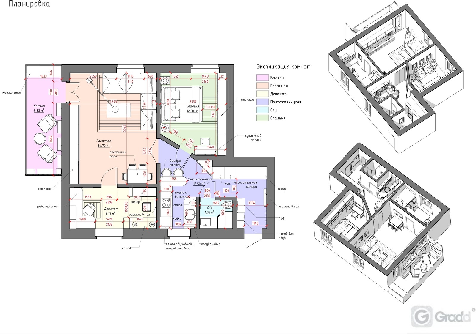
Дизайн квартиры 66,5кв.м. в современном стиле
Дизайн для застройщика ЖК Паруса (2 вар-а: студия и свободная планировка)
Два вар. 2-х ком. квартиры для застр-ка ЖК Паруса (студия и отдельные комнаты)
Квартира в новостройке для молодой семьи (дизайн в графике)
Проект кафе Middle Bar
Квартира в ЖК Прогресс 98кв.м. в современном стиле