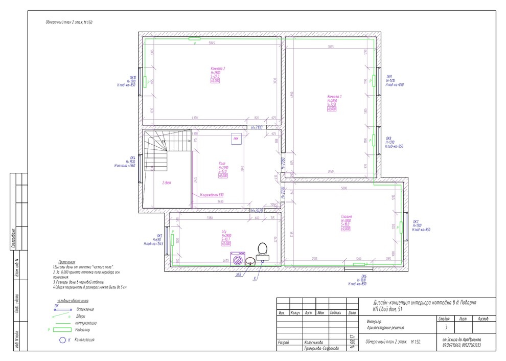
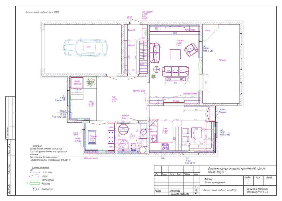
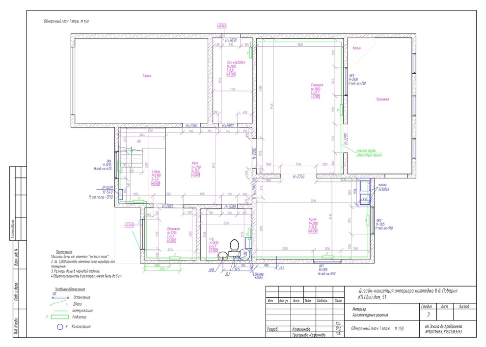
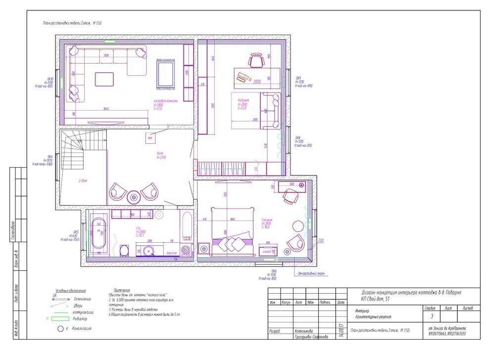
Дизайн-концепция интерьера коттеджа в д.Поварня КП Свой дом
Авторы проекта: Григорьева-Сафронова Татьяна, Колесникова Ольга
Год реализации: 2018
48 фотографий
Авторы проекта: Григорьева-Сафронова Татьяна, Колесникова Ольга
48 фотографий

Трехкомнатная квартира по ул. Вильгельма де Генина
Дизайн-проект интерьера жилого дома "Байкал" в п. "Экодолье" г. Екатеринбург
Дизайн-проект интерьера индивидуального жилого дома в г. Сергиев Посад
Дизайн-проект интерьера квартиры по ул. Татищева, г. Екатеринбург
Дизайн-проект офиса B2B компании Мегафон, г.Пермь
Однокомнатная квартира по ул. Сиреневый бульвар 19а, г. Екатеринбург