Дизайн апартаментов в апарт-комплексе «Волга»
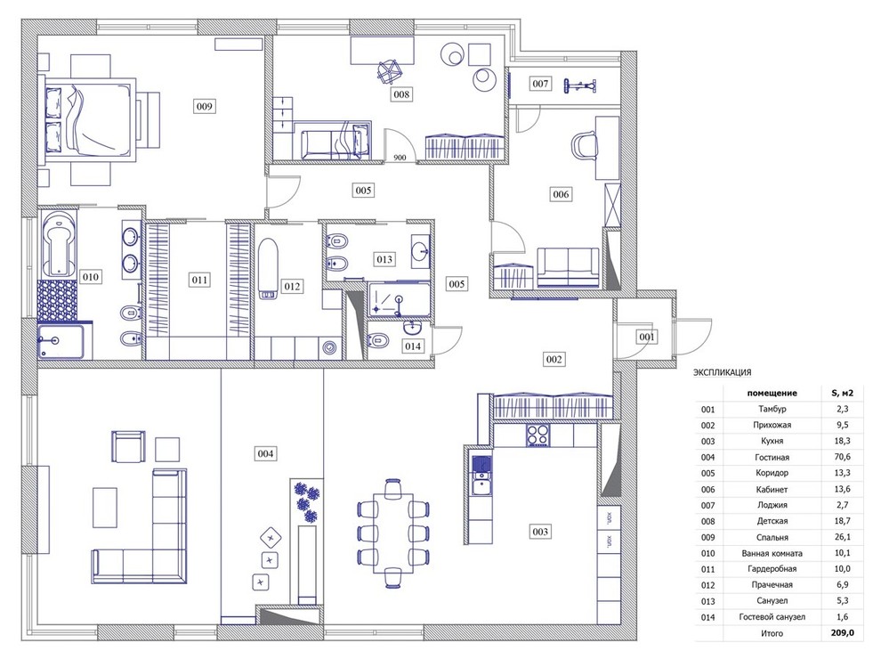
Студия ART of ART представляет современный и воздушный дизайн апартаментов площадью 200 м2, в апарт-комплексе «Волга» в Москве, на Большой Спасской. . Эта роскошная квартира спроектирована для интеллигентной и искушенной пары.
Год реализации: 2017
21 фотография






















