Дизайн 2-ной кв. 67кв.м. Современный стиль
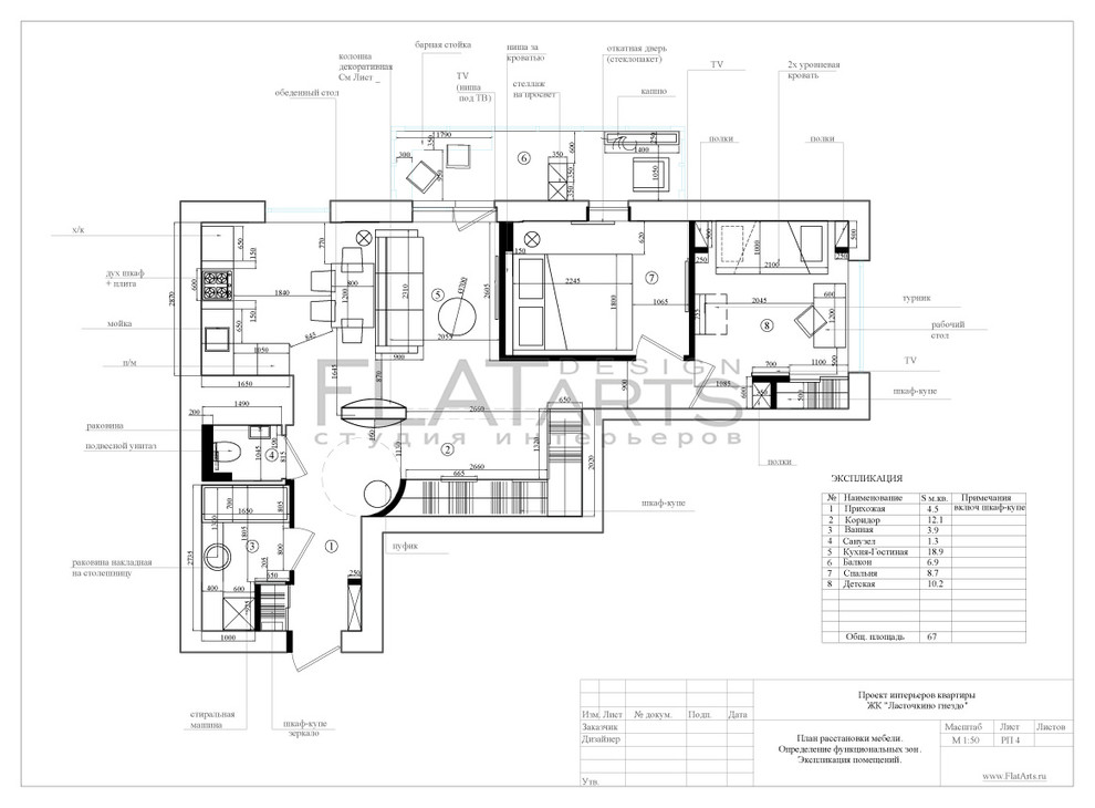
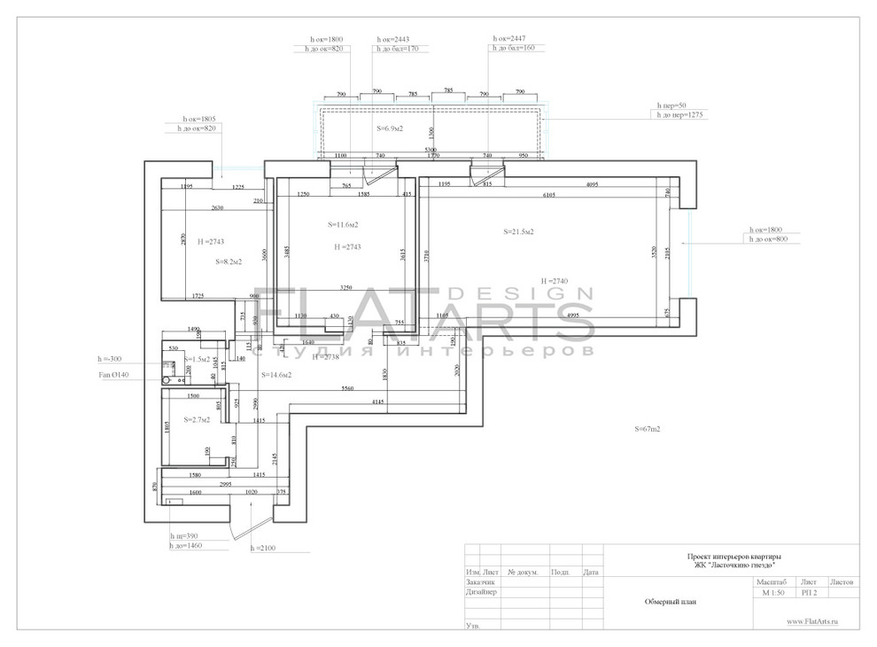
Как разместиться в типовой двушке молодой семье с двумя детьми?. Нам дали полную свободу творчества и разрешение снести все стены, по необходимости, кроме несущих.
Год реализации: 2015
г. Санкт-Петербург
26 фотографий



























