Детская для двойняшек в загородном доме
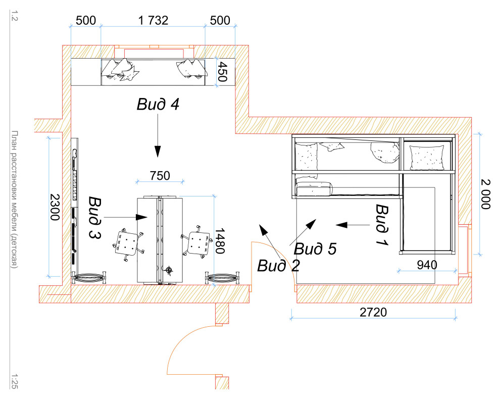
Детская для разнополых двойняшек в загородном доме. Задача была в уже жилом доме создать функциональное и уютное пространство без возможности полностью перекрасить существующую вагонку и оставить существующую отделку пола. Проект был частичным - эскизы в карандашной технике и коллаж с подбором основных элементов, но с услугой авторского надзора и комплектации. Ряд находок дизайн-проекта - необычный стол для двух детей, акцентная окраска вагонки в рабочей зоне, уютная угловая кровать домик и мягкий подоконник с зоной хранения - все одновременно является и функциональным и тактильно приятным и визуально работает на цельный уютный интерьер.
Год реализации: 2021
18 фотографий



















