logo
Войти
Профиль пользователя

Деревянный дом

Год реализации: 2017
photo

3 фотографии

План мансардного этажа
План мансардного этажа
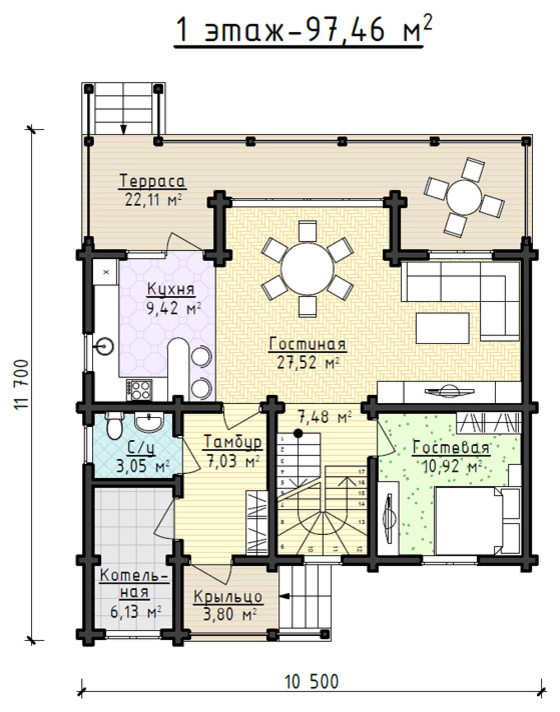
План 1-ого этажа
План 1-ого этажа
Деревянный дом
Деревянный дом
Фоновое изображение профиля Марина Пономарева
Фото профиля Марина Пономарева

Марина ПономареваМарина Пономарева

0

0 отзывов

Архитекторы

Контакты

г. Тула

Все проекты

Двухэтажный дом с плоской кровлей

Городской дом

Каркасный дом в пригороде

Дом в пригороде

Двухэтажный дом с гаражом

Одноэтажный дом с сауной

Дом из бревна ручной рубки

Смотреть все
Флатика
О насМы в прессеFAQКонтактыМатериалыКарта сайта

«Флатика» в соцсетях:

ПинтерестМаксВкДзенTelegramTelegram Pro
Pro
Instagram

Продукт компании Meta, признанной экстремистской организацией, деятельность которой запрещена в РФ

Пользовательское соглашениеПолитика в отношении обработки персональных данных

© 2026 Flatica

ФотоЭкспертыСтатьи