logo
Год реализации: 2025
photo

8 фотографий

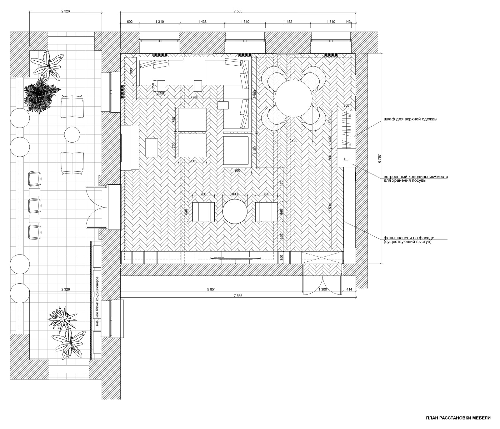
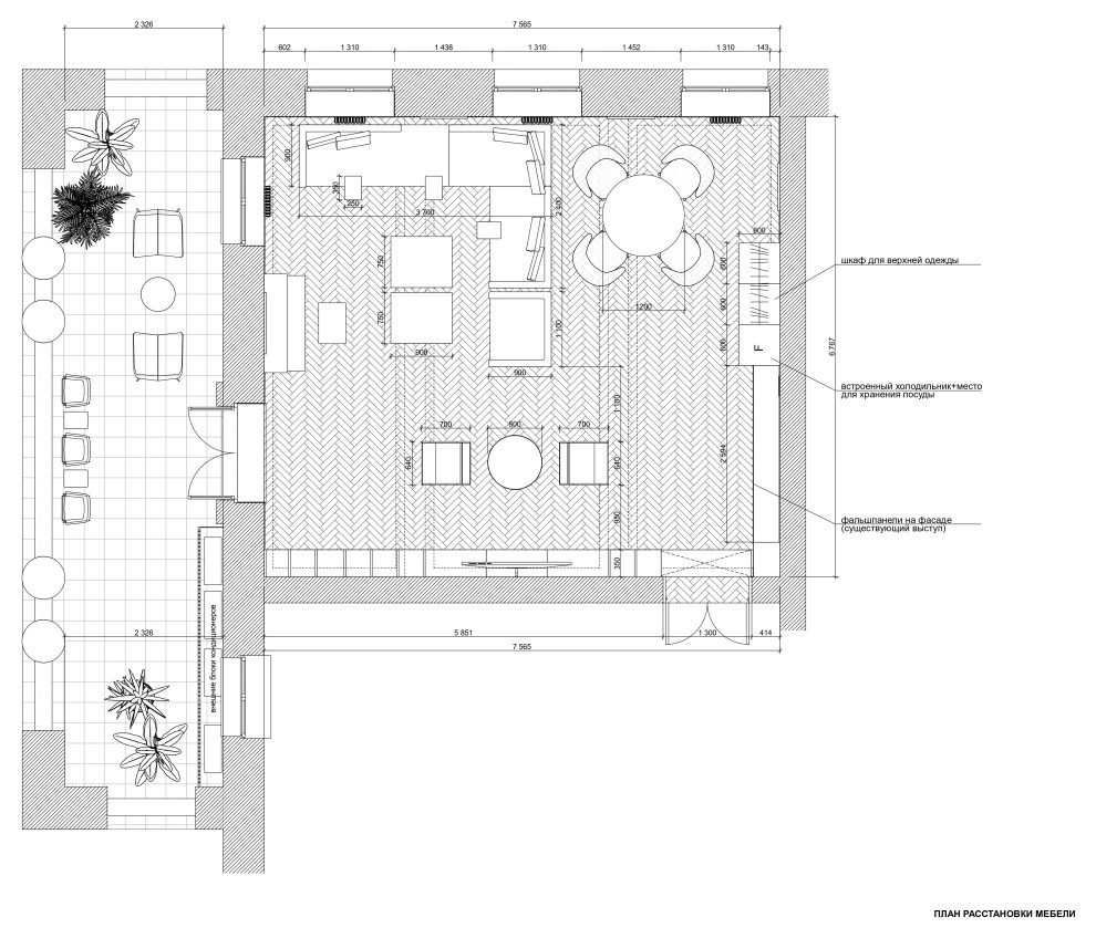
Деловой клуб
Деловой клуб
Деловой клуб
Деловой клуб
Деловой клуб
Деловой клуб
Деловой клуб
Деловой клуб
Деловой клуб
Деловой клуб
Деловой клуб
Деловой клуб
Деловой клуб
Деловой клуб
Деловой клуб
Деловой клуб
Фоновое изображение профиля Таня Яковлева
Фото профиля Таня Яковлева

Таня Яковлева

Дизайнеры интерьера

Контакты

г. Москва